Ya‘an Cultural Tourism Group and Pokiddo joined forces to create an “adorable dream team” combining Australia’s kangaroo with Ya’an‘s panda. Inside a fanshaped, uniquely structured space with a 13.5meter clear height, and with a 60day construction timeline, they built Sichuan Province’s first flagship store – Ya’an Panda Sports Dream Factory. This 2,960㎡ project proves one thing: when IP cobranding meets professional design, a commercial space can become an emotional vessel carrying a city‘s memories.
【60 Days to Set a Record】The birth of Ya’an‘s 2,960㎡ Panda Sports Dream Factory! DualIP cobranding increases visitor dwell time by 40%.

Project Name: Pokiddo x Panda Sports Dream Factory
Project Address: Green Island Art Center, Nüwa Square, Ya’an City, Sichuan Province
Project Area: 2,960㎡
Ceiling Height: 4.5m on single floors, with a partial zone reaching 13.5m
Cooperation Model: EPC+O Brand CoBrand (Ya‘an Cultural Tourism Group subsidiary + Pokiddo)
Construction Period: 60 days (10% shorter than originally planned)
Opening Date: September 28, 2024
02. Project Background: The Rebirth of a City Landmark

Nüwa Square is located north of Qingfeng Road and east of Green Island Road in Ya’an‘s Yucheng District. It is Ya’an‘s landmark “city living room,” with a total investment of approximately 136 million RMB and covering about 4.95 hectares (equivalent to seven standard soccer fields). Centered around a newly built art center and a scenic pedestrian footbridge, the project integrates ecological recreation, commercial consumption, and cultural experiences through cultural performances and tourism consumption scenarios. It has become a highquality public space that ignites the city’s vitality.
The “Pokiddo x Panda Sports Dream Factory,” jointly created by a specialized subsidiary of Ya’an Cultural Tourism Group and Pokiddo, serves as Sichuan Province‘s first flagship store, injecting new energy into Ya’an‘s culturaltourism integration through innovative business models.
03. IP CoBrand: When Kangaroo Meets Panda
【Kangaroo and Panda Team Up】 Ya’an‘s 13.5m clear height dualIP playground! Delivered in 60 days – a onestop creation by Pokiddo.
The core highlight of this project is the Cross-sector Collaboration of a dualIP “cute dream team” – Pokiddo’s Australian national treasure kangaroos “DODO” and “ONEAL,” together with Ya’an‘s city image ambassador giant pandas “YAYA” and “ANAN,” form an energetic alliance of sports explorers.
The Design Logic Behind Deep IP Integration
This group of IP characters, both adorable and challenging, serve not only as the venue’s visual symbols but also as protagonists in the spatial narrative:
DODO, ONEAL (Pokiddo‘s Australian Kangaroo IP): The kangaroo’s bouncing ability is translated into design inspiration for the trampoline zone.
YAYA, ANAN (Ya’an‘s City Image Panda IP): The panda’s climbing instinct is incorporated into the design of the climbing structures.
Throughout the themed scenes, visitors can follow the adventure trail of the IP characters, unlocking immersive challenges such as “Jungle Crossing” and “Brave Leap.” The fusion of the two IPs transforms the venue into a tangible story space: Australian grassland elements and the ecology of the panda’s hometown are cleverly connected through art installations, while the dynamic images of the cute IPs run through the wayfinding system, equipment exteriors, and interactive screens.
Visitors can even take AR photos or complete mission challenges with the IP characters on customized play equipment. This deep level of IP integration not only creates highfrequency photo spots but also builds a “play – memory – replay” experience loop through emotional design. Data shows that visitor dwell time in the IPthemed zone increased by 40%, and the conversion rate for secondary spending improved significantly.
【From Construction to Trial Run】 A growth record of Ya‘an‘s 2,960㎡ Panda Sports Dream Factory! Another masterpiece by Pokiddo.

【Site Conditions Before Construction】
Site Challenge: A FanShaped, Irregular Space
Pokiddo x Panda Sports Dream Factory occupies a unique fanshaped, threedimensional structure – three floors are distributed along the arc on two sides of the site. With floortofloor heights of 4.2–4.5 meters on each level and a central open area reaching nearly 14 meters, the vertical spatial relationship presented a significant challenge. The three floors are connected vertically by only two internal staircases, and the sloped boundaries and asymmetric contours of the fanshaped site further increased the complexity of spatial planning.
This created a dual design challenge:
1. How to build an interconnected system of high and lowaltitude attractions within the 14meter central open area, creating organic vertical interaction between the three floors?
2. Given the large number of sloped walls and acuteangled corners in the fanshaped site, how could the layout achieve over 90% space utilization?

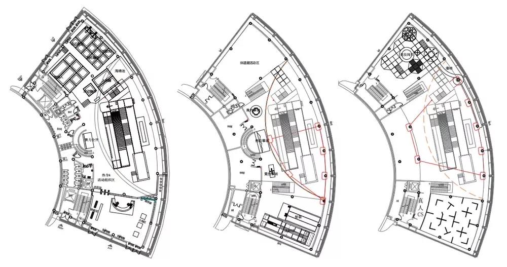
【Master Floor Plan】
The Open Area: Using the site’s existing columns as a structural framework, a doubledeck highropes adventure matrix and a zip line system were built, revitalizing the building‘s structure while creating a dualpurpose node serving as both a visual landmark and a traffic driver.
Scream Slide Zone: A scream slide combination at the entrance, featuring futuristic shapes and highsaturation colors, creates a strong visual anchor – igniting visitors’ desire to try it even before they experience it.
10Meter Vertical Maze: Spiraling upward from the ground floor, this maze connects the secondfloor comprehensive fitness zone and the thirdfloor TAG zone. Upon reaching the top, players can choose either a 12meter freefall descent or an extrahigh slide tube for a vertical landing – both extreme challenge attractions deliver an adrenaline rush through gravitational acceleration, becoming iconic symbols of courage.
LowAltitude Diverse Experiences: A live laser tag zone and a TAG zone use light and shadow technology to create immersive battle scenarios. Dynamic trampoline zones and a comprehensive fitness area continue the classic sports. The addition of bowling and digital sports equipment revitalizes traditional leisure activities with technological interactive appeal.

【Floor Function Zoning Diagram】
Through a design logic of “leisure + sports + entertainment,” this zoning allows visitors of different ages to quickly locate their areas of interest, creating closed loops of different experiences. Moreover, the coordinated layout of functional zones enables operations staff to achieve efficient crosszone supervision, saving 20% in labor costs compared to traditional layouts – balancing experiential comfort with commercial operational efficiency.


【Project Design Renderings】
Dopamine Color Aesthetics: When highsaturation, bright color palettes collide with the cute appeal of panda IP, a spatial revolution of sports and joy unfolds. The venue uses a “dopamine” style to create a visual magnetic field, with lively brushstrokes of color acting like vibrant musical notes, composing a sports overture that stimulates adrenaline.
AllAge Social Ecosystem: Whether it is energetic young people seeking extreme sports, curious children exploring technology interactions, or families enjoying quality time together, visitors can unlock countless possibilities for stress relief, socializing, and emotional connection across diverse scenarios – including trampoline zones, VR exploration spaces, and parentchild challenge courses.

【Construction Process】
The project took a total of 60 days from construction to final acceptance. The team achieved efficient construction through scientific scheduling.
The Wisdom of CrossDiscipline Coordination
Due to the extensive amount of crossdiscipline work, the Pokiddo installation team, engineering team, and finishing team coordinated their activities based on site conditions, using a combination of simultaneous and staggered work shifts. This maximized the use of construction space and time while ensuring safety, ultimately shortening the overall construction schedule by 10% compared to the original plan.
The Pokiddo engineering quality team provided fulltime onsite supervision throughout the construction process, strictly adhering to industry safety standards. They carefully remeasured and checked every construction detail and efficiently advanced daily task plans, ensuring highquality project delivery.
Golden FourDimensional SelfInspection
Pokiddo uses its own rigorous equipment delivery and acceptance standards to build a closedloop quality control system:
Strength: Static load testing
Safety: Fall protection simulation
Playability: Ergonomic experience testing
Craftsmanship: Joint precision inspection
Each attraction passes an average of over 10 individual inspection items. After a full operational simulation acceptance process, both parties sign the Project Acceptance Confirmation Form, completing the professional handover from construction to operation.








On September 28, 2024, Ya’an‘s first family sports center – the Panda Sports Dream Factory – officially opened at the Panda Green Island commercial district. The opening ceremony was lively, with many families bringing their children to participate and experience the venue.
The Ya’an Stateowned Assets Supervision and Administration Commission gave high praise to the project in its related report:
“By introducing Pokiddo‘s mature operational experience and highquality equipment, the project not only helps improve the physical fitness of citizens but also activates the city’s leisure consumption scene through a ‘sports + entertainment + technology’, injecting strong momentum into the innovative development of Ya’an‘s sports industry. This partnership fully demonstrates the synergistic effect of a stateowned enterprise’s resource integration strengths and a brand enterprise‘s professional empowerment. It holds significant demonstrative value for promoting local sports industry upgrades and improving urban public service functions.”

The success of this project once again validates Pokiddo’s core philosophy – “In Pokiddo, we not only master production, but also operations, and most importantly — profitability.”
Master Production: A 60day extreme timeline + endtoend quality control, ensuring highquality delivery.
Master Operations: Deep IP integration + scientific zoning – visitor dwell time increased by 40%, labor costs saved by 20%.
Master Profitability: Conversion rate for secondary spending improved significantly – a demonstrative model of synergy between stateowned enterprise and brand.
What we deliver is not just a space filled with equipment, but an emotional vessel that carries a city’s memories, activates commercial spaces, and creates lasting value.
As a wellknown domestic manufacturer of sports play equipment and an indoor playground brand, Pokiddo specializes in onestop commercial playground construction services. With over 1,000 successful venue projects globally, we have extensive practical experience in planning and design, equipment manufacturing, venue finishing and installation delivery, and venue operations management.
Adhering to the business logic of “creating profitability for our clients‘ venues,” we use a “hasslefree onestop” service approach to provide the fastest and most efficient support for our clients’ profitable venues.
Choose Pokiddo: Your Key to a Profitable Play Project
Adhering to our commitment of “Striving for Excellence, and More Importantly, Striving for Profitability,” we deliver genuine indoor playground turnkey solutions. Our seamlessly integrated service process is built on the principle that “In Pokiddo, we not only master production, but also operations, and most importantly — profitability.”
Consultation & Feasibility Analysis: Market research, competitor analysis, financial modeling.
Creative & Engineering Design: Thematic concept development, 3D layout, detailed construction drawings.
Production & Global Logistics: Standardized lean manufacturing in our own indoor playground equipment factory, complemented by comprehensive logistics management.
Installation & Opening Support: Dispatching certified engineers for onsite installation guidance and operator training.
Ongoing Operations & Optimization: Longterm operational data monitoring consultation and activity update support to maintain market competitiveness.
Choosing Pokiddo means selecting a longterm partner dedicated to your business success.
Ready to Create Your Profitable Play Destination?
Join Pokiddo, Cocreate a Profitable Future
Pokiddo is your trusted commercial indoor playground supplier and professional indoor playground constructor. From compact, customized indoor play systems to largescale entertainment complexes, we provide not only equipment but also a proven path to profitability.
Learn more about success stories and get your customized solution:
Pokiddo Global Project Portfolio
How to Plan Your First Profitable Indoor Playground?

Pokiddo® Vision
To become the world‘s most beloved sports and play brand.
To build an energetic and thriving organization.
To intelligently create 100 branded stores and serve 1 million+ player members by 2029.
Pokiddo® Mission
Play sports, start at Pokiddo. Empower children with more vitality!
Pokiddo® Values
Sincere and Reliable: Be sincere in character, reliable in actions; solve customer pain points and create customer value.
Teamwork: Discuss thoroughly, execute decisively, be good at collaboration, and leverage team strength to solve problems.
Courageous and Responsible: Take responsibility for your actions, be consistent in words and deeds, continuously challenge difficulties, and break through personal limits.
Positive and Optimistic: Believe in the power of belief; identify with company culture; influence others with positive energy.
Eager to Learn: Be good at summarizing and improving; learn from people and organizations that achieve excellent results, and continuously innovate and grow based on that learning.
Happy and Efficient: Manage your energy, be your own master, maintain happiness and passion; use tools effectively, be resultsoriented.
Safety First: Deeply understand the importance of safety, influence colleagues to enhance safety awareness, and ensure the safety of products and operations.
Contact:
Katie Zhang
Phone: +86 189 6899 6888
Websites:
Address:
No. 55 Chengye Road, Qiaoxia Town, Yongjia County, Wenzhou City, Zhejiang Province, China