POKIDDO is excited to present a comprehensive 2380m² indoor family entertainment center in Jiaozuo, China, designed to provide diverse play experiences while maximizing operational profitability. This facility combines active physical play, interactive technology, and social spaces to create a destination that appeals to children, teens, and families.

As a developing city in Henan Province, Jiaozuo has seen growing interest in high-quality indoor entertainment options that serve both children and families. With increased disposable income and the need for safe, climate-controlled play environments, this playground is designed to meet local demand while offering a variety of revenue streams.
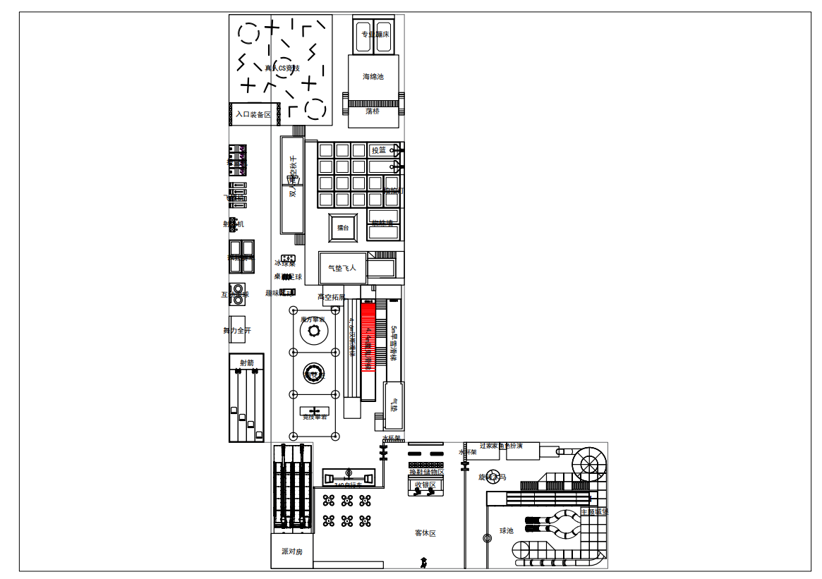
Location: Jiaozuo, China
Total Area: 2,380㎡
Design Theme: Multi-zone play and entertainment destination
Target Audience: Families with children aged 3-15, party groups, and teens

A vibrant and engaging area featuring:
Multi-level play structures with tunnels, bridges, and interactive panels
Three-lane plastic tube slides at varying heights
Fiberglass slides and a combined spider tower + spiral slide
Large ball pool and role-play family areas for imaginative play
A high-energy zone designed for active fun:
Professional-grade trampolines
Foam pit, swing bridge, and slam dunk basketball
Interactive TAP FUN light walls
Spider wall and boxing arena trampolines
Airbag jumper for safe aerial practice
Laser CS GO: An immersive tactical game space that encourages team play and strategy, appealing to older kids and teens.
An adventure-based section featuring:
High-altitude swing and 360° cycling attraction
Rope net expansion structures
Below the course: cube climbing walls, plum blossom piles, and transparent climbing surfaces for efficient space usage
A technology-enhanced gaming area including:
Archery and bowling lanes
Just Dance and other motion-based video games
Various redemption and prize-winning electronic games
Private Party Rooms: Dedicated spaces for birthday parties and group events.
Parent Café & Rest Area: A comfortable zone offering pre-packaged snacks and beverages, creating an additional income source while encouraging longer stays.

Space Optimization: The elevated challenge course with climbing elements below demonstrates efficient vertical planning.
Local Adaptation: All equipment meets Chinese safety standards (GB), and theming incorporates both international and local aesthetic preferences.
Family-Centric Layout: Clear sightlines allow parents to supervise children across zones, with seating integrated near play areas.
We provide end-to-end solutions from design and manufacturing to installation and operational guidance. Our expertise ensures that each project is tailored to local demographics and market conditions while maintaining international quality and safety standards.
Interested in Developing a Play Space in Your City?
Contact POKIDDO today to receive a customized proposal and layout plan designed for your specific market and space.
For premium commercial indoor playground equipment, visit Pokiddo Sports or explore innovative designs at Betta Play.