At Pokiddo, a proud brand under Bettaplay, we specialize in creating immersive and engaging play spaces that inspire children to explore, learn, and have fun. We are excited to showcase our latest project: a comprehensive 1900-square-meter indoor playground designed for a client in India.

Location: India
Total Area: 1,900 sq.m
Design Theme: Modern Adventure. This playground is designed to be a vibrant, dynamic, and safe environment that stimulates physical activity, creativity, and social interaction. The layout encourages a natural flow from active, high-energy zones to more imaginative play areas.
Target Audience: Families with children aged 2-12 years. The facility offers attractions tailored for toddlers, young children, and tweens, ensuring an engaging experience for every age group and making it the perfect destination for family fun and birthday parties.

Our design approach focused on maximizing the guest experience through innovative layout and feature selection:
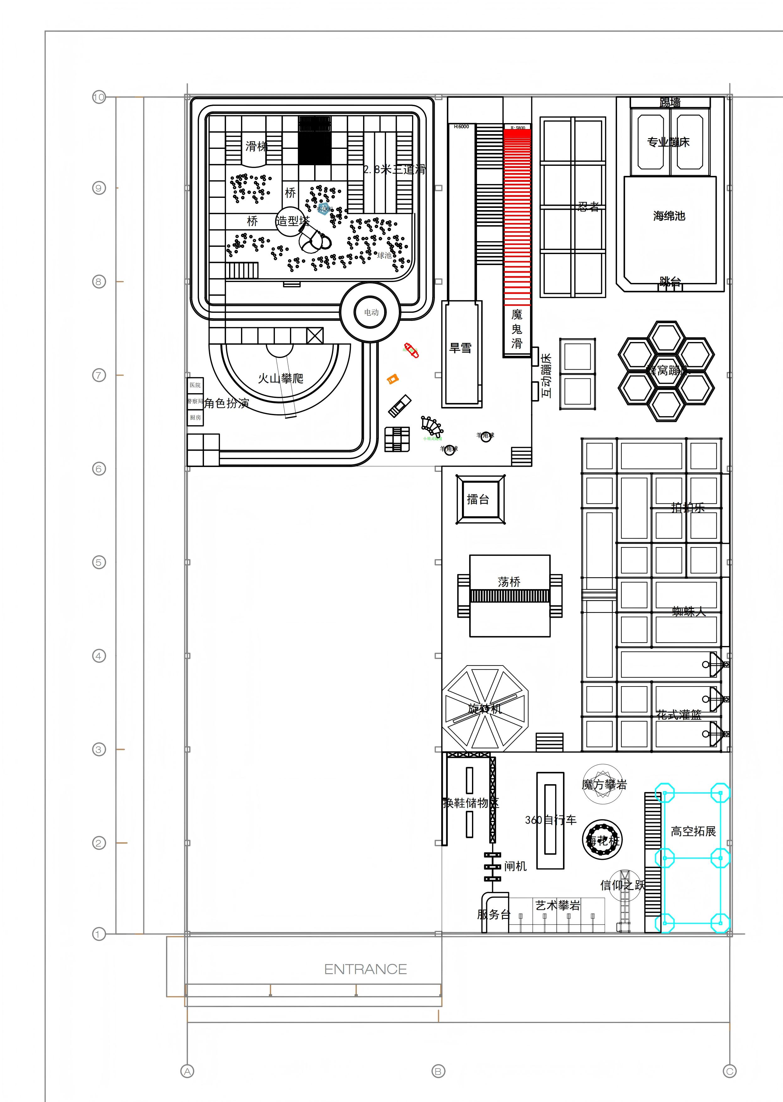
Optimal Zoning: The clear separation into three distinct zones (Play Castle, Trampoline Park, Challenge Zone) ensures a logical flow, manages crowd density, and caters to different age groups and activity preferences simultaneously.
Balanced Activity Mix: The design masterfully combines high-energy attractions (like the trampolines and climbings) with creative, social play (like the role-play house and interactive games), offering a well-rounded experience that keeps children engaged for longer visits.
Immersive Aesthetics: A modern and colorful adventure theme runs throughout the facility, with custom graphic designs and equipment styling that create a stimulating and exciting atmosphere from the moment children enter.
Revenue Optimization: The inclusion of high-demand, Instagrammable attractions like the 360° Bicycle, Spider Wall, and Rubik's Cube Climbing Wall drives footfall and repeat business, while the variety of activities encourages all-day play and party bookings.
This vibrant play zone is thoughtfully divided into three distinct areas, each offering unique attractions.

This zone is designed for younger children and includes:
Play Castle – A multi-level structure encouraging imaginative play
Ball Pool – A safe and colorful ball pit for sensory fun
Volcano Slide – An exciting slide designed for thrill-seeking little ones
Soft Play for Toddlers – Age-appropriate soft play elements for safe exploration
Role-Play House – A mini “home” where kids can engage in pretend play
Large Slide Combination – A series of slides for endless fun
A dynamic area for active play and fitness:
Professional Trampolines – High-quality trampolines for bouncing fun
Foam Pit – A soft landing area for safe jumps and flips
Ninja Challenge Course – An obstacle course for aspiring ninjas
Interactive Trampoline – Games and lights that react to movement
Spider Wall – Vertical fun with Velcro suits
Basketball Dunk – Slam dunk like a pro on trampolines
Interactive Tap Fun – Light-up panels for interactive games
Boxing Trampoline – Combine boxing moves with bounce
Swing Bridge – A balancing adventure
Inflatable Russian Roulette – A fun, soft spinning game
For those who love adventure and physical challenges:
Rope Course – A climbing and balancing aerial trail
Artistic Climbing Walls – Colorful and engaging climbing surfaces
Stepping Poles – A test of balance and coordination
Rubik’s Cube Climbing Wall – A puzzle-like climbing experience
Jump Tower – A controlled free-fall experience
360° Bicycle – A unique spinning ride for brave hearts
At Pokiddo, safety is the foundation of every design. This project incorporates our unwavering commitment to protecting young guests:
Premium Materials: All equipment is constructed from high-grade, non-toxic materials, including commercial-grade PVC, tarpaulin, and corrosion-resistant steel frames, ensuring durability and long-term safety.
International Standards: Our designs and manufacturing processes comply with international safety standards, including ASTM (ASTM F1487) and EN (EN 1176), for all play equipment and trampolines.
Safety-Conscious Design: The layout includes adequate fall zones around equipment, strategically placed safety padding on all hard surfaces, and clear sightlines for parental supervision.
Professional Installation & Training: Our team of certified technicians ensures precise installation, and we provide comprehensive operational and safety training for the client's staff to maintain a secure environment.
We are proud to bring this world-class, safe, and exhilarating play facility to India and look forward to seeing children and families create lasting memories.
We deliver start-to-finish solutions for FEC projects worldwide – from initial concept and technical planning to manufacturing, installation, and ongoing operational support. Our expertise in maximizing space efficiency and revenue potential makes us the ideal partner for large-scale international projects.
Ready to Develop Your Large-Scale Indoor Play Project?
Contact POKIDDO today to receive a customized design plan and quotation tailored to your local market needs and space parameters.
For premium commercial indoor playground equipment, visit Pokiddo Sports or explore innovative designs at Betta Play.