Located in Luogang Central Park, the world's largest urban central park, with its main building designed by Professor Li Xinggang, the architect of the national "Bird's Nest" stadium, Pokiddo's fifth national direct store officially opened on October 1, 2023. Taking only 30 days from design to construction, this allage venue integrating sports entertainment, family fun, athletic competition, and interactive technology delivered a result that embodies our philosophy of "In Pokiddo, we not only master production, but also operations, and most importantly — profitability" — achieved through its "Memphis" design style and rigorous safety standards.
Project Name: Champion No.1 · Pokiddo Sports Dream Factory (Hefei Store)
Project Address: Building 3, Champion No.1 Sports Center, Luogang Central Park, Hefei, Anhui
Project Area: 2,000㎡
Architectural Background: Designed by Professor Li Xinggang, architect of the national "Bird's Nest" stadium
Project Positioning: Allage social entertainment and play space
Opening Date: October 1, 2023
Construction Period: 30 days

Pokiddo Sports Dream Factory is Pokiddo's fifth national direct store, located inside Building 3 of the Champion No.1 Sports Center in Luogang Central Park, Hefei, Anhui. Champion No.1 Sports Center · FSPACE is an innovative urban park sports service complex integrating sports space, leisure space, play space, esports space, and dining space, covering diverse functions including sports, entertainment, socializing, and lifestyle.
This partnership represents a powerful collaboration between Pokiddo and Champion No.1, bringing together the operational thinking of both brands and adapting to local conditions to create a trendy sports center with synergistic scale effects. Through a variety of professional and recreational trendy sports facilities, the center makes sports a lifestyle — a process of enjoyment and relaxation — while becoming a local social media hotspot and a second space for sports.

Pokiddo Sports Dream Factory is positioned as an allage social entertainment and play space integrating sports entertainment, family fun, athletic competition, interactive technology, teambuilding parties, and social mediaworthy spots. Built around trampolines, combining sports with entertainment, and blending technology with competition, it is a benchmark for sports entertainment suitable for all ages — a place to exercise, compete, explore, have fun, relieve stress, play, enjoy, and gather.

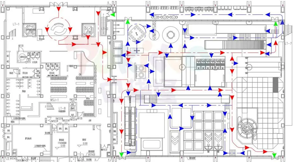
Venue Positioning



Venue Functional Zoning Diagram
Pokiddo Sports Dream Factory features a thrilling scream slide, a highaltitude adventure challenge zone combining climbing and high ropes, a classic trampoline sports zone, a trendy TAG zone, a digital interactive sports zone, as well as a leisure and entertainment zone with party rooms, billiards, bowling, claw machines, and other attractions.
The Hefei Pokiddo Sports Dream Factory is Pokiddo's first adoption of the "Memphis" design style, combined with the Pokiddo VIS system, taking indoor sports playgrounds to a new level.
Core Design Concept: Emotion comes from passionate and vibrant pop color elements. Daring to use contrasting colors and trying new things is the essence of the Memphis spirit — unbound by rules of "what is right."
Composition Characteristics: Breaking away from straight horizontal and vertical lines. Both graphic designs and equipment shapes use combinations of wavy curves, curved surfaces, and straight lines and planes.
Color Palette: Heavy use of contrasting colors with bright, vivid selections — highbrightness, highchroma tones like pink, lake blue, and bright purple. Small geometric shapes like dots, lines, and surfaces are used for playful decorative details.

Venue Renderings

Venue Environmental Design
From the moment the Pokiddo construction team entered the site to project completion, a total of 30 days passed.
The Wisdom of CrossDiscipline Construction: During the installation process, the equipment installation team, engineering construction team, and environmental finishing team worked simultaneously or in staggered shifts, efficiently advancing daily task plans to ensure the project opened on schedule.
Quality Control: Pokiddo's engineering quality team provided fulltime onsite supervision, following industry safety standards, carefully remeasuring and checking every equipment installation detail. Project delivery and acceptance also underwent rigorous inspection.
Safety Assurance: The zip lines and transfer mechanisms used in the high ropes course are from the KOALA series of France's ALTUS company — all chosen to ensure product quality and play safety.

Construction Photos











As Pokiddo's fifth national direct store, the Hefei project holds important demonstrative significance:
Design Innovation: First adoption of the "Memphis" style, breaking the visual conventions of traditional playgrounds.
Construction Efficiency: A 30day extreme timeline, setting a model for multiteam collaboration.
Safety Standards: Professional equipment from France's ALTUS — safety above all else.
Operational Validation: The direct store model provides a replicable success blueprint for franchise partners.
The success of this project once again validates Pokiddo's core philosophy: "In Pokiddo, we not only master production, but also operations, and most importantly — profitability."
Adhering to our commitment of "Striving for Excellence, and More Importantly, Striving for Profitability," we deliver genuine indoor playground turnkey solutions. Our seamlessly integrated service process is built on the principle that "In Pokiddo, we not only master production, but also operations, and most importantly — profitability."
Consultation & Feasibility Analysis: Market research, competitor analysis, financial modeling.
Creative & Engineering Design: Thematic concept development, 3D layout, detailed construction drawings.
Production & Global Logistics: Standardized lean manufacturing in our own indoor playground equipment factory, complemented by comprehensive logistics management.
Installation & Opening Support: Dispatching certified engineers for onsite installation guidance and operator training.
Ongoing Operations & Optimization: Longterm operational data monitoring consultation and activity update support to maintain market competitiveness.
Choosing Pokiddo means selecting a longterm partner dedicated to your business success.
Ready to Create Your Profitable Play Destination?
Join Pokiddo, Cocreate a Profitable Future
Pokiddo is your trusted commercial indoor playground supplier and professional indoor playground constructor. From compact, customized indoor play systems to largescale entertainment complexes, we provide not only equipment but also a proven path to profitability.
Learn more about success stories and get your customized solution:
Pokiddo Global Project Portfolio
How to Plan Your First Profitable Indoor Playground?
In Pokiddo, we not only master production, but also operations, and most importantly — profitability.
To become the world's most beloved sports and play brand.
To build an energetic and thriving organization.
To intelligently create 100 branded stores and serve 1 million+ player members by 2029.
Play sports, start at Pokiddo. Empower children with more vitality!
Sincere and Reliable: Be sincere in character, reliable in actions; solve customer pain points and create customer value.
Teamwork: Discuss thoroughly, execute decisively, be good at collaboration, and leverage team strength to solve problems.
Courageous and Responsible: Take responsibility for your actions, be consistent in words and deeds, continuously challenge difficulties, and break through personal limits.
Positive and Optimistic: Believe in the power of belief; identify with company culture; influence others with positive energy.
Eager to Learn: Be good at summarizing and improving; learn from people and organizations that achieve excellent results, and continuously innovate and grow based on that learning.
Happy and Efficient: Manage your energy, be your own master, maintain happiness and passion; use tools effectively, be resultsoriented.
Safety First: Deeply understand the importance of safety, influence colleagues to enhance safety awareness, and ensure the safety of products and operations.
Contact:
Katie Zhang
Phone: +86 189 6899 6888
Websites: