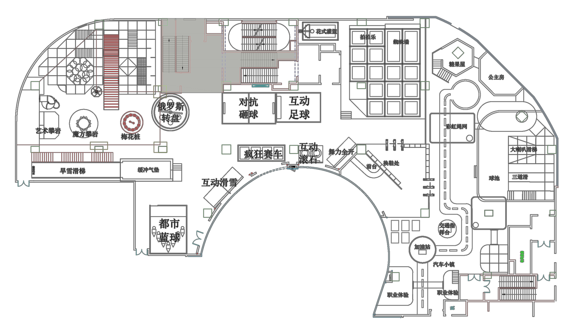
Suqian Sports Park is located in Suqian Wanda Plaza. This sports park integrates sports and leisure activities, providing players with a one-stop park venue.
Now let's take a look at how the Pocket House team thought about and created this design project!
Consumer Group Analysis: Considering the size of the venue and other business types comprehensively, the consumer group we have targeted includes teenagers and children who enjoy sports.

Through communication and analysis with customers, we have integrated sports as the core and combined elements such as competition, exploration, and digital sports to create a sports paradise specifically for young people.







Swakopmund’s success showcases Pokiddo as your turnkey Indoor Trampoline Park partner:
First-Mover Advantage: We empower visionary entrepreneurs (even industry newcomers).
Revenue-Optimized Design: Packed 8+ attractions into 500sqm for maximum ROI.
Global Safety, Local Compliance: TUV+SGS certifications de-risk your investment.
Repeat-Visit Magnet: Multi-generational appeal ensures sustained traffic.
Ready to Capture Your Market’s Potential?
Whether you envision a specialized Indoor Trampoline Park or a mixed-use Indoor Playground, Pokiddo transforms concepts into profitable, joy-filled realities. From design to compliance, we engineer success—one bounce at a time.
Invest in happiness. Partner with Pokiddo.