The Spanish Sports Park integrates sports and leisure activities, providing players with a one-stop park venue.
Now let's take a look at how the Pokiddo team team thought about and created this design project!
Consumer Group Analysis: Considering the size of the venue and other business types comprehensively, the consumer group we have targeted includes teenagers and children who enjoy sports.

Through communication and analysis with customers, we have integrated sports as the core and combined elements such as competition, exploration, and digital sports to create a sports paradise specifically for young people.



1. Comprehensive Service Area
2. Slide Area
3. Naughty Castle Area
4. Electronic Interaction Area
5. Trampoline Area

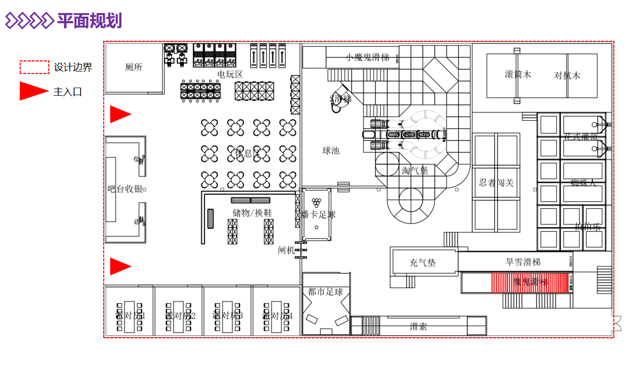
Centered around the main entrance, the theme square, the stage or the main service desk, the main and secondary circulation routes are arranged radiating out in all directions. A secondary ring line is set around the core area. This layout is suitable for projects where there are or must be many entrances and exits around, and where the core area has strong appeal. Gathering the flow of people to the core and then directing them to different zones can enhance the evaluation and effectiveness of the project. The content of the projects around the core area should also have a primary and secondary distribution.
Swakopmund’s success showcases Pokiddo as your turnkey Indoor Trampoline Park partner:
First-Mover Advantage: We empower visionary entrepreneurs (even industry newcomers).
Revenue-Optimized Design: Packed 8+ attractions into 500sqm for maximum ROI.
Global Safety, Local Compliance: TUV+SGS certifications de-risk your investment.
Repeat-Visit Magnet: Multi-generational appeal ensures sustained traffic.
Ready to Capture Your Market’s Potential?
Whether you envision a specialized Indoor Trampoline Park or a mixed-use Indoor Playground, Pokiddo transforms concepts into profitable, joy-filled realities. From design to compliance, we engineer success—one bounce at a time.
Invest in happiness. Partner with Pokiddo.