
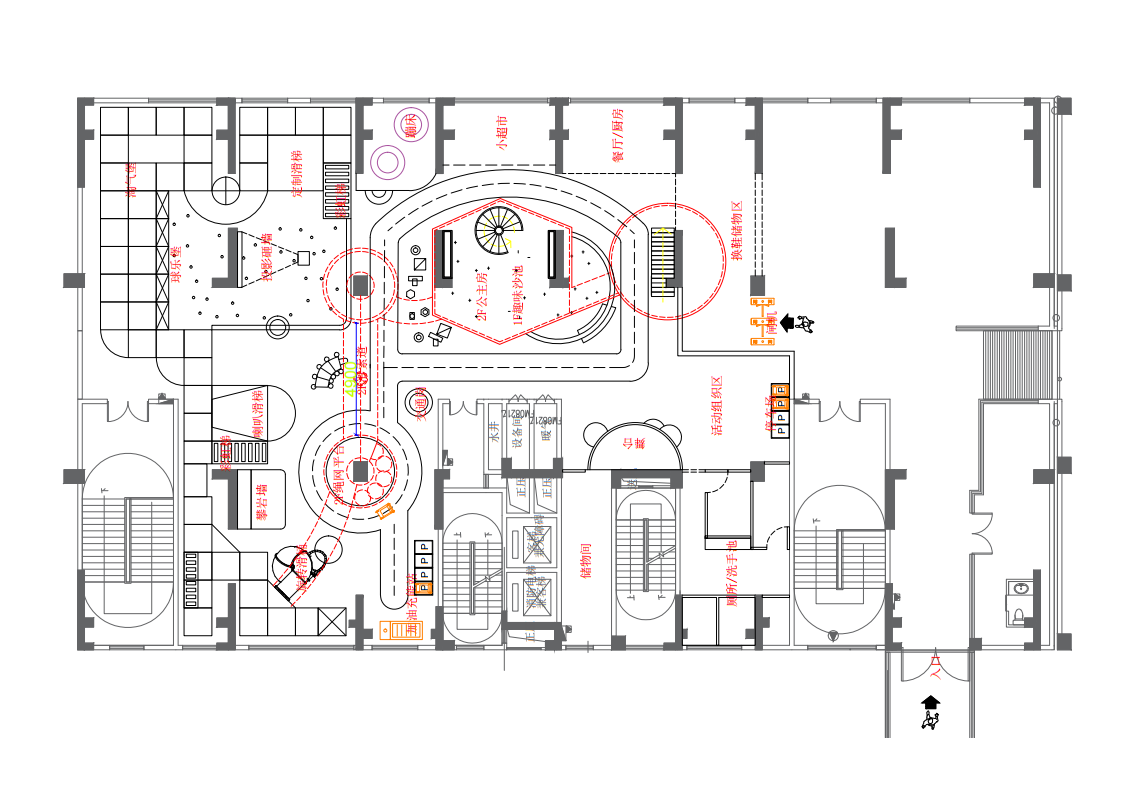
Location: Xining, Qinghai Province
Total Area: 800 sq.m
Target Audience: Children 3-10 years
Regional Market Analysis: As the largest city on the Tibetan Plateau, Xining represents a growing regional market with increasing demand for high-quality indoor entertainment options. The design addresses the need for year-round play facilities suitable for the region's high-altitude climate and limited outdoor play seasons.
Design Theme: Fantasy Adventure Village – Creating an immersive environment that stimulates imagination through thematic play zones.

Central attraction featuring premium indoor playground equipment:
Ball Play Castle: Multi-level structure with integrated ball pools providing sensory stimulation and cooperative play opportunities. The design encourages social interaction and motor skill development through ball collection and distribution games.
Climbing Wall: Custom-designed climbing surfaces with varying difficulty levels, promoting physical coordination and confidence building in a controlled environment.
Horn Slide: Specially designed indoor slide with spiral descent pattern offering thrilling yet safe sliding experiences that stimulate vestibular system development.
Modern play integration featuring:
Long Shadow Projection Wall: Interactive digital game where children's movements control on-screen elements, combining physical activity with cognitive development.
Custom Slides: Specially designed sliding elements that can be reconfigured for varied play experiences, enhancing replay value and long-term engagement.
Immersive educational areas including:
Rope Net Platform: Elevated net structures promoting balance and spatial awareness development.
Princess Room (2F): Fantasy-themed space encouraging imaginative role-play and social skill development.
Fun Sand Pool (1F): Tactile play area using specialized play sand for sensory exploration and creative construction activities.
Mini Supermarket: Educational role-play environment teaching basic commerce concepts and social interaction.
Restaurant/Kitchen: Pretend-play area promoting cooperative play and practical life skill awareness.
Comprehensive operational areas:
Activity organization zone for group events and parties
Dedicated shoe storage and changing area
Restroom facilities with child-friendly amenities
Storage rooms for equipment maintenance
Parking accessibility considerations

All indoor playground equipment complies with international safety standards (ASTM F1487, EN 1176) while incorporating advanced features:
Integrated digital safety monitoring systems
Commercial-grade structural supports for high-usage areas
Climate-appropriate materials for Saudi Arabian conditions
Advanced impact-absorbing flooring throughout
Separate emergency exits with clear access routes
This design delivers significant business benefits:
Technology Integration: Digital elements encourage repeat visits
Age-Specific Zoning: Clear activity separation for different age groups
Revenue Optimization: Multiple revenue streams from various activity types
Operational Efficiency: Low-maintenance entertainment equipment for commercial use
Cultural Compliance: Design respects local preferences while offering international quality
The facility supports comprehensive child development through:
Digital literacy through interactive technology
Physical development via trampoline and climbing activities
Creative expression in arts and crafts areas
Social skills in group play environments
Cognitive development through problem-solving games
Why Choose Pokiddo?
✅ All-Age Appeal – Attractions for kids, teens, and adults
✅ Safety-Certified – Compliant with EU trampoline, slide, and climbing norms
✅ Dynamic Layout – Smart zoning + real-time crowd management
For premium commercial indoor playground equipment, visit Pokiddo Sports or explore innovative designs at Betta Play.
