
Project Name: Spain Active Adventure Hub
Project Area: 1,800 square meters
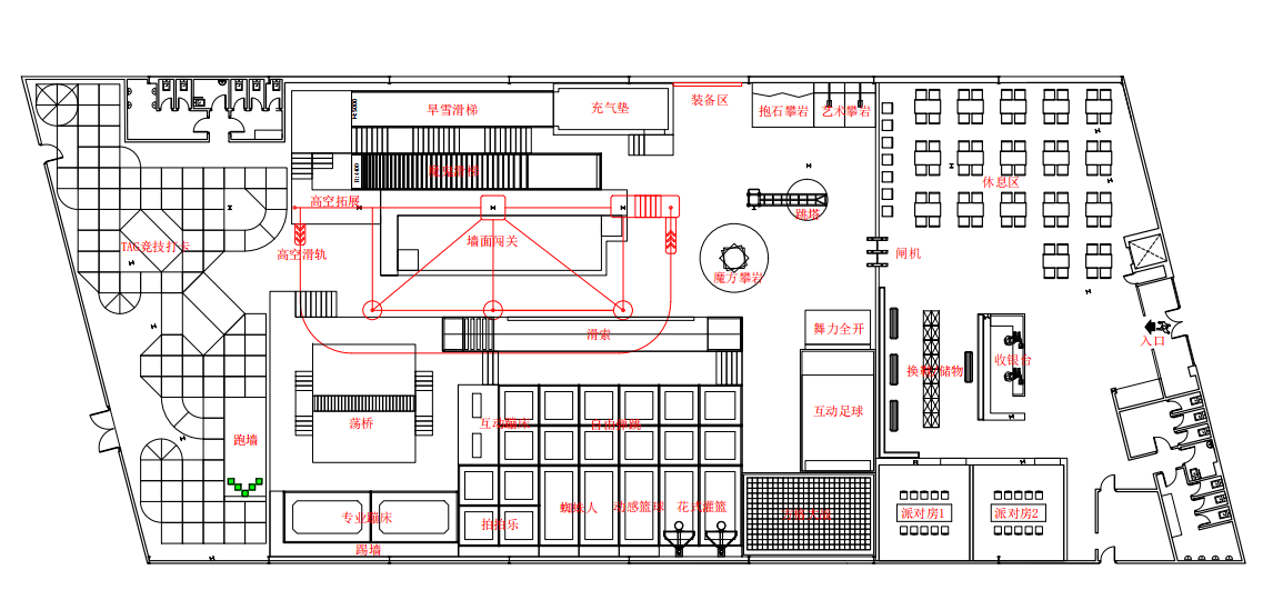
Project Features: A multi-generational play space featuring thrilling aerial tracks, interactive sports zones, challenging obstacle courses, and immersive themed environments.
Project Location: Spain
Designed for the vibrant Spanish market, this comprehensive indoor playground exemplifies Pokiddo's expertise as a leading indoor playground supplier and kids park playground equipment supplier. We delivered a complete package of entertainment equipment for commercial use, tailored to energize and engage children, teens, and young adults.
The Spanish market for family entertainment centers shows strong demand for innovative, high-quality venues that offer more than basic play. This project is strategically positioned as a premium sports park and social activity hub. It caters to the local appetite for active, shared experiences by combining physical challenges with interactive technology and imaginative themes, ensuring broad appeal and repeat visits from the core 6-20 age demographic.

As a direct indoor playground factory, Pokiddo engineered every zone for maximum engagement, safety, and durability.
Aerial Gliding Tracks: The dual high-altitude slide rails provide an exhilarating zip-line experience across the play space. Crafted with smooth, aircraft-grade aluminum and secure harness systems, they offer a thrilling yet safe aerial adventure that is a major crowd-puller.
Cross-Net Challenge Course: This multi-level obstacle course features rope nets, tunnels, and climbing elements. It builds agility, strength, and problem-solving skills, encouraging healthy competition and perseverance.
Interactive Football Arena: This tech-enhanced soccer area allows for penalty shootouts and skill games with digital scoring. It taps into Spain's famed football culture, providing active, social fun and fostering friendly competition.

Power Launch Zone: A dynamic area featuring trampolines and launch pads, this zone is designed for high-energy jumping and aerobic exercise, improving coordination and leg strength in a controlled environment.
Themed Immersion Rooms: These sequentially connected rooms offer a unique, narrative-driven adventure. Each room presents different sensory and physical challenges, promoting teamwork, exploration, and imaginative play as groups move from one themed environment to the next.
Support Areas: The design also includes a dedicated Equipment Zone for gear management, a secure Gated Entry system for access control, and functional spaces like drag strips and tow areas to facilitate smooth operations and crowd flow.

Safety is the foundation of every Pokiddo project. All equipment, from the towering aerial rails to the interactive panels, complies with the highest international safety standards, including EN 1176 (Europe) and ASTM F1487. As a responsible kids park playground equipment supplier, we use only non-toxic, durable materials, implement secure fall zones with certified padding, and ensure all structures are installed and certified for public commercial use.
The Spain Active Adventure Hub demonstrates Pokiddo's full-service capability—from creative concept and in-house manufacturing at our indoor playground factory to global installation. This project successfully merges local cultural interests with universal play values, creating a must-visit destination that is thrilling, safe, and commercially robust. It stands as a testament to our commitment to delivering world-class entertainment equipment for commercial success worldwide.
Why Choose Pokiddo?
✅ All-Age Appeal – Attractions for kids, teens, and adults
✅ Safety-Certified – Compliant with EU trampoline, slide, and climbing norms
✅ Dynamic Layout – Smart zoning + real-time crowd management
For premium commercial indoor playground equipment, visit Pokiddo Sports or explore innovative designs at Betta Play.
