Our client is an experienced commercial real estate investor in Yangon, Myanmar. Within a newly built complex, he secured a prime 1300㎡ location with excellent ceiling height. His vision was clear: not just another standard children's play area, but to create a landmark "one-stop family entertainment center" that would attract all age groups and deliver outstanding ROI. His challenge was: how to avoid a monotonous layout in such a large space, scientifically plan visitor flow, and design an entertainment mix that would appeal simultaneously to toddlers, teenagers, and parents.
Based on deep recognition of our brand philosophy to "master production, master operations, and most importantly — master profitability," the client chose Pokiddo for an EPC (Engineering, Procurement, Construction) partnership. He valued that we, as an Indoor playground equipment manufacturer, offer not just products but become involved from the very beginning, providing a full-chain solution encompassing market positioning, spatial planning, and profit modeling from an operator's perspective.
This is more than a well-equipped playground; it is a commercial case study where we successfully transformed a large space into an engine for customer traffic and sustained profitability through precise "operations-first" design.

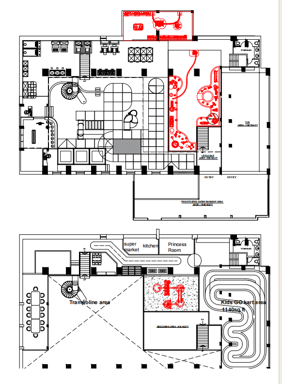
The site offered a spacious, regular layout, providing inherent advantages for a large-scale project. The core design difficulties were: how to efficiently integrate eight core attractions (Soft Play Structures, Trampolines, Ball Pool, Zip Line, Soft Play Area, EPP Blocks, Stepping Posts, High-Rope Course) within 1300㎡, solve the problems of "interference between active and calm zones" and "covering all-age needs," while ensuring highly efficient operational flow.
"No Design Without Operations" Strategy:


Zone 1: Landmark Courage Challenge Zone (High-Rope Course + Zip Line)
Positioning & Experience: Serves teenagers (8+) and challenge-seeking families, creating the venue's visual focal point and a test of courage.
Design Insight: Fully utilizes the ceiling height advantage by integrating the high-rope course with slides and zip lines, forming a coherent "aerial adventure corridor."
Client Value:

For Visitors: Strong visual impact and sense of achievement, a hotspot for social media check-ins and sharing.
For Operators: A core selling point for attracting older demographics and team-building events. Easily facilitates independent timed challenges to increase secondary spending.


Zone 2:Comprehensive Trampoline Park
Positioning & Experience: Acts as the venue's "energetic heart," attracting all sports-loving visitors, offering a diverse experience from free jumping to fun interactive activities (e.g., basketball dunk trampolines).
Design Insight: Utilizes professional-grade commercial trampolines, zoned into free jump, basketball, and dodgeball areas to cater to different play preferences.
Client Value:
For Visitors: Universally appealing, quickly ignites playful energy.
For Operators: A high-traffic, high-energy attraction with excellent revenue per square foot. Facilitates organization of small classes or competitions, improving utilization during off-peak hours.

Zone 3: Toddler Safe Exploration Zone :Soft Play Structure + Soft Play Area + EPP Blocks
Positioning & Experience: A fully padded, safe kingdom designed specifically for toddlers aged 1-6, encouraging climbing, sliding, crawling, exploration, and creative building.
Design Insight: All equipment edges and corners are fully padded, with soft flooring throughout. Adjacent placement of the soft play structure and the independent EPP block zone combines active and calm play.
Client Value:
For Visitors: Provides absolute peace of mind for parents of young children, forming the basis for family dwell time.
For Operators: The core area for hosting group activities from kindergartens and early learning centers, ensuring baseline weekday traffic.

We executed a modular packaging and shipping plan. Equipment was clearly labeled, packed by zone, and shipped via sea freight with full logistics tracking. Our professional installation team worked on-site in close coordination with the client’s team. We adhered to a phased inspection protocol, testing each completed zone to ensure timely, high-quality project handover.

Pre-Opening Empowerment: Before the grand opening, we provided the client's operations team with a week of systematic training covering equipment functionality, key safety monitoring points, emergency response procedures, and daily cleaning/maintenance, followed by practical assessments.
Long-Term Partnership Value:
The commercial-grade materials and modular design we employed result in lower long-term maintenance costs and easier future upgrades for the client. This successful EPC cooperation model also provides a reliable framework for the rapid replication of subsequent projects and investment decisions for the client.

We firmly believe that successful projects stem from holistic control over production, operations, and profitability. As your one-stop partner, Pokiddo offers the following core services:
1. Business Consulting & Planning: Market research, competitor analysis, ROI calculation.
2. Creative Design & Planning: Thematic concepts, 3D panoramic design, construction drawing development.
3. Product Manufacturing & QC: High-standard production in our own Professional indoor playground factory.
4. Project Implementation & Support: Global logistics, professional installation, system commissioning, and opening preparation.
5. Operations Empowerment & Training: Operations system setup, staff training, initial marketing support.

Choosing Pokiddo means choosing a strategic partner deeply invested in your commercial success.
Ready to Build Your Landmark Entertainment Destination?
Pokiddo is your trusted partner for creating profitable family entertainment centers and Indoor trampoline jump center. From a single setup of kids play center park equipment to a comprehensive amusement park kids indoor, we deliver the expertise and quality to ensure your venture thrives.
Explore more success stories and start your profitable journey:
Pokiddo: We not only master production, but also operations, and most importantly — profitability.