
Location: Malaysia
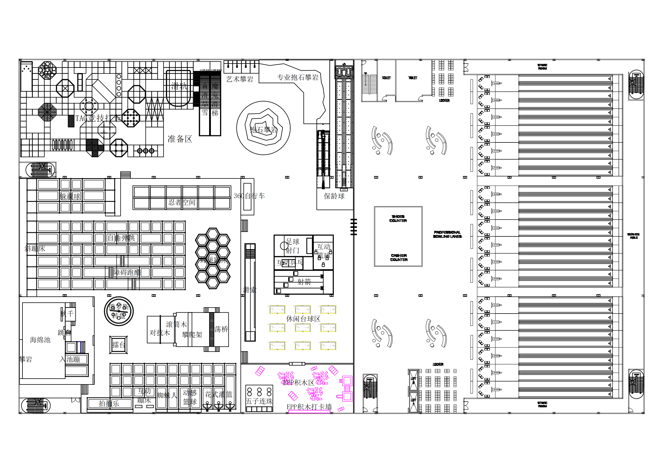
Total Area: 5000 sq.m
Design Theme: Urban Sports & Interactive Play – A dynamic, industrial-inspired space that promotes movement, skill-building, and social interaction.
Target Audience: Families, teenagers, young adults, and corporate groups.
Pokiddo’s design focused on creating a seamless flow between high-adrenaline zones and relaxed interactive spaces. Key design principles included:
Zonal Clustering: Grouping similar activities to enhance user experience and operational efficiency.
Flexible Layout: Allowing easy reconfiguration for events, parties, and group bookings.
Visual Connectivity: Ensuring clear sightlines for safety and supervision while maintaining an open, spacious feel.
Tech Integration: Blending physical play with digital interactivity to appeal to tech-savvy visitors.
A high-energy area featuring foam pits, interactive trampolines, ninja courses, and freestyle jump spaces for active fun and fitness.
Foam Pit with Swing Bridge, Battle Beam, and Rolling Log
Climbing Wall with Entry Jump Platform & Foam Pit
Interactive Trampolines
Spider Wall
Basketball Dunk
Interactive Tap Fun
Dodgeball Trampoline
Large Free Jump Area
Honeycomb Trampolines
Boxing Trampoline
Ninja Challenge Course

An adventure-focused zone with climbing walls, slides, a 360° bicycle, and obstacle courses designed for thrill-seekers and skill-building. For those seeking adventure and physical tests:
Dry Alpine Slide
Devil Slide
Artistic Climbing Wall
Bouldering & Professional Bouldering Walls
Overhead Zip Rail
TAG Competitive Check-In Game
360° Bicycle
A tech-driven social hub offering interactive sports simulators, archery, billiards, and bowling for engaging group play. A tech-enhanced social hub featuring:
Interactive Soccer
Interactive Basketball
Archery
Interactive Ping Pong
Billiards Area
Bowling

A safe and creative space with EPP block castles and puzzle walls tailored for young children’s imaginative and tactical development. A safe and creative space for younger children:
EPP Block Castle
“Five-in-a-Row” Tactical Game Wall
All equipment and layout designs adhere to international safety standards (ASTM, EN). Key safety features include:
Commercial-grade foam and padding
Reinforced structural supports
Secure harness systems for climbing and zip lines
Non-slip surfaces and impact-absorbing flooring
This 5000 sq.m Sports Factory represents Pokiddo’s capability to deliver large-scale, multi-functional entertainment venues that are both engaging and commercially viable. By combining traditional active play with modern interactive technology, the facility offers a diversified experience that encourages repeat visits and extended dwell time.
Why Choose Pokiddo?
✅ All-Age Appeal – Attractions for kids, teens, and adults
✅ Safety-Certified – Compliant with EU trampoline, slide, and climbing norms
✅ Dynamic Layout – Smart zoning + real-time crowd management
For premium commercial indoor playground equipment, visit Pokiddo Sports or explore innovative designs at Betta Play.
