The Phuket Sports Park is located in the Phuket Mall. It boasts wide and beautiful beaches, pure white sand grains, and emerald green water. As a "gem" in the Andaman Sea of the Indian Ocean, it naturally attracts many international celebrities. Investor Mavis keenly perceived the market prospects of the entertainment industry in the local area and, by chance, found us.
Now let's take a look at how the Pocket House team thought about and created this design project!
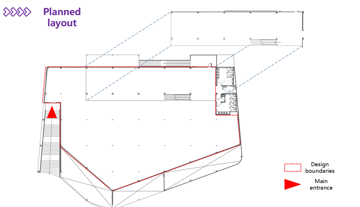
Consumer Group Analysis: Considering the size of the venue and other business types comprehensively, the consumer group we have targeted includes teenagers and children who enjoy sports.

Through communication and analysis with customers, we have integrated sports as the core and combined elements such as competitive sports, adventure rock climbing, and digital sports to create a sports paradise specifically for children.





All the equipment is available for 85 players to use simultaneously (excluding those queuing and those moving around).
It is suggested that the entire venue can accommodate a maximum of 200 to 260 visitors at the same time. Exceeding this number will negatively impact the player experience and increase the operational pressure of the venue management.


There are usually 7 to 10 permanent staff members in the venue. During holidays, the number of visitors increases, so it is advisable to hire some temporary workers.
Swakopmund’s success showcases Pokiddo as your turnkey Indoor Trampoline Park partner:
First-Mover Advantage: We empower visionary entrepreneurs (even industry newcomers).
Revenue-Optimized Design: Packed 8+ attractions into 500sqm for maximum ROI.
Global Safety, Local Compliance: TUV+SGS certifications de-risk your investment.
Repeat-Visit Magnet: Multi-generational appeal ensures sustained traffic.
Ready to Capture Your Market’s Potential?
Whether you envision a specialized Indoor Trampoline Park or a mixed-use Indoor Playground, Pokiddo transforms concepts into profitable, joy-filled realities. From design to compliance, we engineer success—one bounce at a time.
Invest in happiness. Partner with Pokiddo.