The Spanish Sports Park is located in a shopping mall on the Canary Islands of Spain. It is known as a "mini continent" and attracts tourists with its concentrated diversity. Each island has its own unique features, with a mild and dry climate, belonging to the subtropical Mediterranean type. The average annual temperature ranges from 21 to 26 degrees Celsius, and the precipitation is relatively low and concentrated in winter. Investor Anna Mingrui noticed the market potential of the entertainment industry in the local area and found us by chance.
Now let's take a look at how the Pocket House team thought about and created this design project!
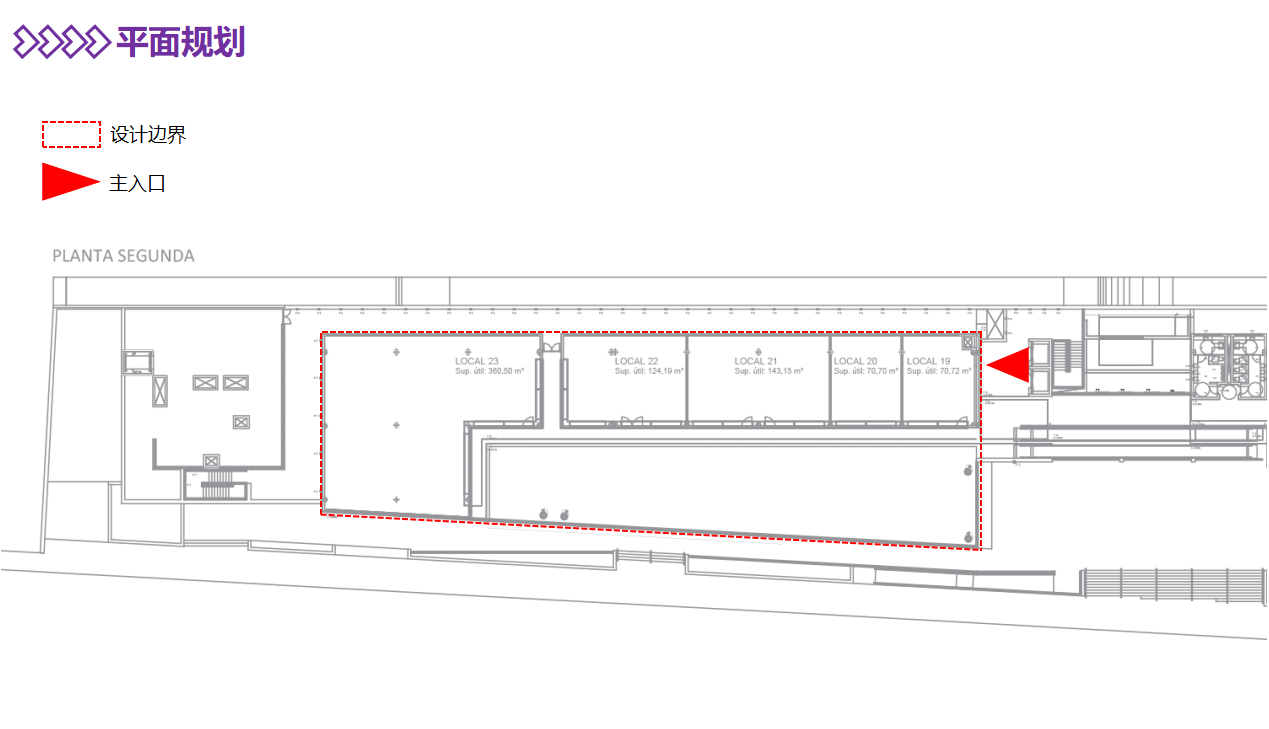
Consumer Group Analysis: Considering the size of the venue and other business types comprehensively, the consumer group we have targeted includes teenagers and children who enjoy sports.

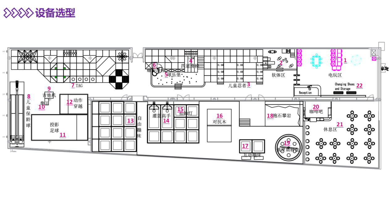
Through communication and analysis with customers, we have integrated sports as the core and combined elements such as competitive sports, adventure rock climbing, and digital sports to create a sports paradise specifically for children.






There are usually 6 to 8 permanent staff members in the venue. During holidays when the number of visitors increases, some temporary workers can be hired appropriately.
Swakopmund’s success showcases Pokiddo as your turnkey Indoor Trampoline Park partner:
First-Mover Advantage: We empower visionary entrepreneurs (even industry newcomers).
Revenue-Optimized Design: Packed 8+ attractions into 500sqm for maximum ROI.
Global Safety, Local Compliance: TUV+SGS certifications de-risk your investment.
Repeat-Visit Magnet: Multi-generational appeal ensures sustained traffic.
Ready to Capture Your Market’s Potential?
Whether you envision a specialized Indoor Trampoline Park or a mixed-use Indoor Playground, Pokiddo transforms concepts into profitable, joy-filled realities. From design to compliance, we engineer success—one bounce at a time.
Invest in happiness. Partner with Pokiddo.