Project Name: Wujiang Mountain Family Sports and Entertainment Center in Hubei Province
Project Area: 8,000 square meters
Project Contents: Challenges, relaxation, excitement, entertainment, sports

In Pingxiang, Hubei Province, this small city nestled among the landscapes of Chu region, has been using cultural and tourism integration as its brush to draw up the blueprint for industrial upgrading in the green mountains and clear waters. The local government is well-versed in the development principles of "all-round tourism", not only protecting and renovating scattered ancient villages, but also laying hiking trails and viewing platforms in the Danxia landform and bamboo forest paradise, attempting to make every inch of natural scenery a magnet to attract tourists. However, on this thriving tourism map, there is a "weak link" that has always been bothering Mr. Yang, the person in charge of the scenic area operation - the lack of indoor recreational projects that can withstand weather impacts.
Mr. Yang began to search for professional tourism and cultural project planning companies on the internet. On the search engine results page, he was overwhelmed by various proposals: some focused on a technological feel but lacked humanistic warmth; some emphasized parent-child interaction but were disconnected from the local culture of Pingxiang. It was only when he clicked on the official website of POKIDDO - the "intangible cultural heritage revitalization + immersive entertainment" case displayed on the homepage - that it coincided exactly with his envisioned concept.
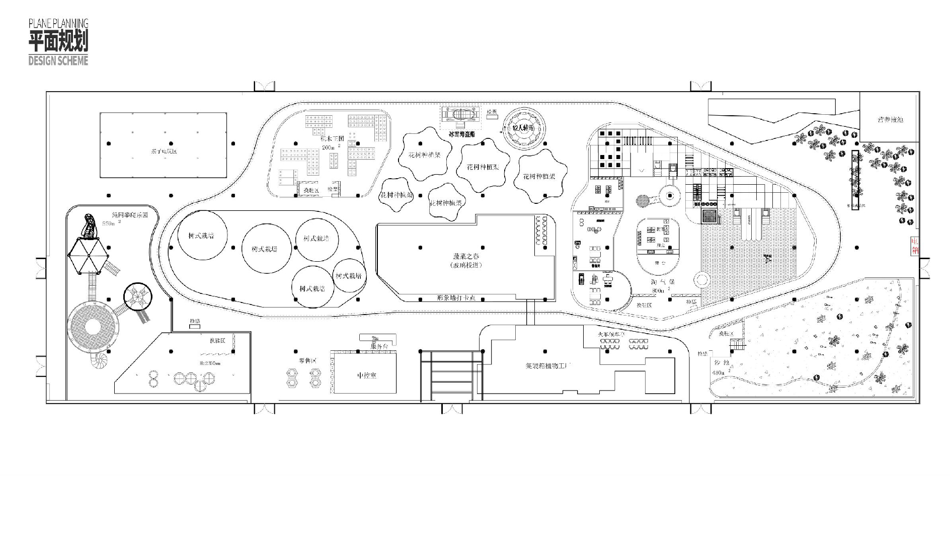
Next, please allow me to show you the amusement park plan we have designed for Mr. Yang.












Swakopmund’s success showcases Pokiddo as your turnkey Indoor Trampoline Park partner:
First-Mover Advantage: We empower visionary entrepreneurs (even industry newcomers).
Revenue-Optimized Design: Packed 8+ attractions into 500sqm for maximum ROI.
Global Safety, Local Compliance: TUV+SGS certifications de-risk your investment.
Repeat-Visit Magnet: Multi-generational appeal ensures sustained traffic.
Ready to Capture Your Market’s Potential?
Whether you envision a specialized Indoor Trampoline Park or a mixed-use Indoor Playground, Pokiddo transforms concepts into profitable, joy-filled realities. From design to compliance, we engineer success—one bounce at a time.