
This landmark project in Spain represents another significant milestone for Pokiddo, fully demonstrating our comprehensive capabilities as a leading manufacturer of indoor playgrounds and trampoline parks. The park is a large-scale, integrated family entertainment destination, encompassing a total area of 1,700 square meters across indoor and outdoor spaces. The entire process, from initial concept discussions to the grand opening, was completed in approximately just four and a half months. This project stands as a powerful testament to our commitment to delivering high-quality, tailor-made turnkey solutions that meet the specific needs of diverse international markets, and it solidifies our reputation for reliable and efficient project delivery.


02. Project Planning
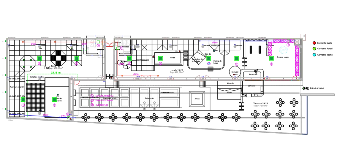
The design phase was characterized by highly collaborative and iterative refinement. Our team worked closely with the client, developing the optimal space planning solution through a series of in-depth discussions and online meetings. Throughout the project, we navigated eight planning revisions and four rounds of 3D visual design, continuously optimizing the layout. Each iteration aimed to enhance visitor experience and streamline operational logic.
This meticulous design process focused on creating distinct, engaging zones that maximized the use of both indoor and outdoor spaces. Key strategic decisions included optimizing the placement of major attractions to create natural visitor flow and opportunities for cross-zonal viewing. For instance, the climbing wall was positioned for maximum visual impact, while interactive areas were designed for seamless integration. The final layout represents a masterful balance, perfectly blending thrilling adventures with safe and imaginative play areas suitable for visitors of all ages.

Understanding that location is a critical factor for project success, our team conducted an in-depth analysis of the site's potential within the local market context and provided comprehensive support. We assisted in evaluating foot traffic patterns, local community demographics, and the competitive landscape. This collaborative analysis ensured the final chosen location was strategically sound, laying a solid foundation for creating a profitable and well-loved community landmark. Our expertise in market research empowers our partners to make informed, data-driven investment decisions.

04. Operations-Driven Design
Every design decision was made with long-term operational efficiency and profitability in mind. The park is divided into clear functional zones, enabling streamlined management, precise maintenance, and flexible pricing strategies. This operational foresight is central to our design philosophy.
Our in-house 3D design team played a crucial role in bringing the shared vision to life. We provided comprehensive equipment and interior design proposals, creating highly realistic renderings that allowed the investment team to preview and confirm every detail before production began. This holistic approach ensured the space is not only fun and engaging but also aesthetically cohesive and cost-effective to build, thereby avoiding the budget overruns often associated with less specialized designers.


05. Transportation and Installation
All equipment for the park was manufactured in our own factory to the highest safety and quality standards. Upon finalizing the design, we immediately activated a streamlined logistics plan to transport all materials and equipment to the construction site in Spain. During transit, the client’s team prepared the site, ensuring everything was ready for immediate installation upon arrival.
Our certified installation team arrived on-site and diligently completed the assembly of the entire park. Throughout this phase, we maintained strict quality control and kept close communication with the client to promptly resolve any issues. This professional and coordinated approach minimized downtime, ensuring the project progressed smoothly and was on track for a successful, on-schedule opening.


06. Operational Support
Our partnership extends far beyond equipment installation. To ensure the park's ongoing success, we provided comprehensive operational support, including detailed training for local managers and staff on all equipment, daily safety checks, and customer service protocols.
Furthermore, we integrated our proprietary, advanced POS and management system into the park's operations. We trained the team on using this system for ticketing, membership management, and sales analysis, equipping them with powerful tools to enhance revenue and understand customer behavior. This end-to-end support empowers our partners to run their business confidently and efficiently from day one.
07. Park Opening
The grand opening was a resounding success, generating significant excitement within the local community. The event drew large crowds of visitors, officially establishing the park as a premier destination for family entertainment and birthday celebrations.
The success of this project highlights the strength of the Pokiddo collaboration model. It showcases our unique ability to combine innovative design, reliable manufacturing, and practical operational wisdom to deliver a complete and profitable business solution for our clients. From initial analysis to ongoing support, we are committed to being a true partner in our clients' success.






08. Services Provided by Pokiddo
We firmly believe that successful projects stem from comprehensive control over production, operations, and profitability. As your one-stop partner, Pokiddo offers the following core services:
1. Business Consultation & Planning: Market research, competitor analysis, ROI calculation.
2. Creative Design & Planning: Thematic concepts, 3D panoramic design, construction drawing preparation.
3. Product Manufacturing & Quality Control: High-standard production in our own 36,000㎡+ professional indoor playground factory.
4. Project Implementation & Support: Global logistics, professional installation, system commissioning, and pre-opening preparation.
5. Operational Empowerment & Training: Operations system setup, staff training, initial marketing support.

Are you planning to open your own indoor playground or trampoline park? Partner with Pokiddo for a proven, reliable, and hassle-free turnkey solution. Contact our team today to discuss how we can bring your vision to life.
