Attracting over 30 million visitors annually, with average annual family spending exceeding €5,000 on child-related activities, yet high-quality indoor playgrounds remain a scarce resource in Portugal. Pokiddo's tailor-made 600㎡ indoor children's playground for a Portuguese client demonstrates our brand promise at every stage—from market analysis and spatial planning to equipment manufacturing and operational launch. This project fully confirms that "In Pokiddo, we not only master production, but also operations, and most importantly — profitability."
【Guided by Popo/Kiki/Dodo/Oneal】 The premiere of the Portugal Pokiddo 3D video! Let the Pokiddo family take you on a tour of this fantasy playground~
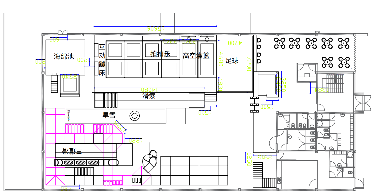
Project Location: Portugal
Project Area: 600㎡
Target Audience: Local families + Tourist families
Surrounding Amenities: Located near 14 shopping centers and 19 schools, with convenient transportation access.
Site Transformation: Converted from a 600㎡ industrial warehouse with a 6-meter clear height.
Core Attractions: Themed slides, professional trampolines, climbing challenges, high ropes courses, ball pools, toddler soft play area.
Scope of Services: Market analysis, planning & design, equipment manufacturing, installation & delivery, operational support.
Project Status: Completed and open for business.
【Dodo Has Moved In!】 Pokiddo's most curious character can't wait! Countdown to the Portugal store opening.
Portugal welcomes 30 million tourists annually, with the family travel segment growing, leading to concentrated demand for indoor activities on rainy days. Local families spend over €5,000 per year and show a strong willingness to pay for high-quality experiences. Existing facilities are often outdated, making a 600㎡ themed playground a rare commodity in second-tier cities. After comparing several suppliers, the client chose Pokiddo for a key reason: we provide not just equipment, but a full-chain solution covering market positioning, spatial planning, and operational profitability. This commitment is rooted in our belief that "In Pokiddo, we not only master production, but also operations, and most importantly — profitability."

【Switch to Happy Mode in 2026】 In the New Year 2026, Pokiddo wishes to fill your moments with smiles, adventure, and laughter~
When we took on this project, the first thing we did was not to draw blueprints, but to redefine how this space should "live." The key was ensuring every corner attracts visitors and every activity keeps them engaged. Design Concept: Active/Quiet Zoning, Full Age Coverage.
Traffic Flow Design for Visibility and Smooth Movement: To optimize people, we ensured that parents in the rest area have a clear, unobstructed view of their children playing in all zones. The play route adopts a circular design to avoid dead ends and congestion, naturally guiding children between different functional areas while also facilitating easy supervision and guidance by staff.
Themed Slide Zone: Multi-lane themed combination slides.
Professional Trampoline Zone: Free jump trampolines, professional trampolines, slam dunk, bounce and splash games.
Toddler Soft Play Zone: Soft play castle area.
Ball Pool Zone: Ball pool with interactive projection.
【46-Second Immersive Experience】 A glimpse of the real Portugal Pokiddo! Full of vitality and endless fun!
Before construction began, we provided the client with complete 3D renderings, allowing them to "walk into" the future playground in advance. Our in-house design team provided complete 3D design and thematic customization services for this project. Unlike general design firms unfamiliar with the play industry, our specialization in indoor playgrounds
for many years allows us to achieve striking visual results while effectively controlling costs. Through realistic 3D panoramic renderings, the client could preview the final effect before construction started.



【Celebrate a Birthday at Pokiddo】 Give your child an unforgettable adventure party! Let us help create beautiful memories~
Safety Design Details:
All equipment edges feature rounded corner treatments, with key areas protected by thickened padding.
Trampoline zone springs are fully covered, with a stable mesh enclosure structure.
Climbing zone features automatic belay devices and anti-detachment bolts on climbing holds.
High elements zone incorporates double safety locks, with safety ropes bearing over 2 tons.
All equipment was manufactured in Pokiddo's own 36,000㎡ factory, underwent rigorous quality inspections, and was shipped to Portugal using a modular packaging system.


【Delivery Record】 Portugal Pokiddo before and after installation comparison! Basic safety training provided upon completion.
Equipment Shipment: Dispatched from Ningbo Port, China, arrived at the Portuguese port.
On-site Installation: Pokiddo dispatched a professional engineering team for on-site guidance.
Installation Period: Close cooperation with the local construction team for efficient completion.
Commissioning & Acceptance: Zone-by-zone installation and commissioning, ensuring the stability and safety of each area.
We adopted a zone-by-zone installation and commissioning approach, confirming the stability and safety of each area before moving to the next. Throughout the process, progress was synchronized daily, allowing the client to stay informed at any time.

Our commitment extends far beyond equipment delivery. To ensure our client operates smoothly from day one, we provide comprehensive operational support. This commitment to ongoing success is a core part of our philosophy that "In Pokiddo, we not only master production, but also operations, and most importantly — profitability."
Team Training: Systematic training for the local operations team on equipment operation, daily safety inspections, and emergency response procedures.
Business Guidance: Professional advice on membership system setup, event planning, and standardization of party services.
Smart System: Integration with the Pokiddo smart management system, providing a one-stop solution for ticketing, membership, and daily operations.
Continuous Empowerment: Establishment of long-term online support channels, allowing the client's team to receive remote support for any issues encountered during operation.
After opening, the playground quickly became a popular weekend destination for local families. Lines formed at the themed slide zone, the trampoline area was filled with laughter, parents happily played with their children in the toddler zone, and kids rolled and frolicked in the ball pool.
The client was full of praise for the comprehensive support provided by Pokiddo, stating, "This collaboration with Pokiddo was an exceptionally satisfying and enjoyable experience! The opening was incredibly bustling—we couldn't keep up!" This success story is another testament to the fact that "In Pokiddo, we not only master production, but also operations, and most importantly — profitability."

Choose Pokiddo: Your Key to a Profitable Play Project
Adhering to our commitment of "Striving for Excellence, and More Importantly, Striving for Profitability," we deliver genuine indoor playground turnkey solutions. Our seamlessly integrated service process is built on the principle that "In Pokiddo, we not only master production, but also operations, and most importantly — profitability."
Consultation & Feasibility Analysis: Market research, competitor analysis, financial modeling.
Creative & Engineering Design: Thematic concept development, 3D layout, detailed construction drawings.
Production & Global Logistics: Standardized lean manufacturing in our own indoor playground equipment factory, complemented by comprehensive logistics management.
Installation & Opening Support: Dispatching certified engineers for on-site installation guidance and operator training.
Ongoing Operations & Optimization: Long-term operational data monitoring consultation and activity update support to maintain market competitiveness.

Ready to Create Your Profitable Play Destination?
Join Pokiddo, Co-create a Profitable Future
Pokiddo is your trusted commercial indoor playground supplier and professional indoor playground constructor. From compact, customized indoor play systems to large-scale entertainment complexes, we provide not only equipment but also a proven path to profitability. Learn more about our success stories and get your customized solution: Pokiddo Global Project Portfolio. How to plan your first profitable indoor playground? In Pokiddo, we not only master production, but also operations, and most importantly — profitability.
To become the world's most beloved sports and play brand.
To build an energetic and thriving organization.
To intelligently create 100 branded stores and serve 1 million+ player members by 2029.
Play sports, start at Pokiddo. Empower children with more vitality!
Sincere and Reliable: Be sincere in character, reliable in actions; solve customer pain points and create customer value.
Teamwork: Discuss thoroughly, execute decisively, be good at collaboration, and leverage team strength to solve problems.
Courageous and Responsible: Take responsibility for your actions, be consistent in words and deeds, continuously challenge difficulties, and strive for self-improvement.
Positive and Optimistic: Believe in the power of belief; identify with company culture; influence others with positive energy.
Eager to Learn: Be good at summarizing and improving; learn from people and organizations that achieve excellent results, and continuously innovate and grow based on that learning.
Happy and Efficient: Manage your energy, be your own master, maintain happiness and passion; use tools effectively, be results-oriented.
Safety First: Deeply understand the importance of safety, influence colleagues to enhance safety awareness, and ensure the safety of products and operations.