
Location: Mianyang, China
Total Area: 500 sq.m
Target Age Group: 3-12 years
Regional Insights: With growing urbanization and space constraints in cities like Mianyang, there is increasing demand for compact, high-value entertainment venues that maximize limited space while ensuring safety and engagement.
Design Theme: Colorful Adventure in Miniature – A vibrant, multi-activity play space designed to stimulate imagination and physical activity.

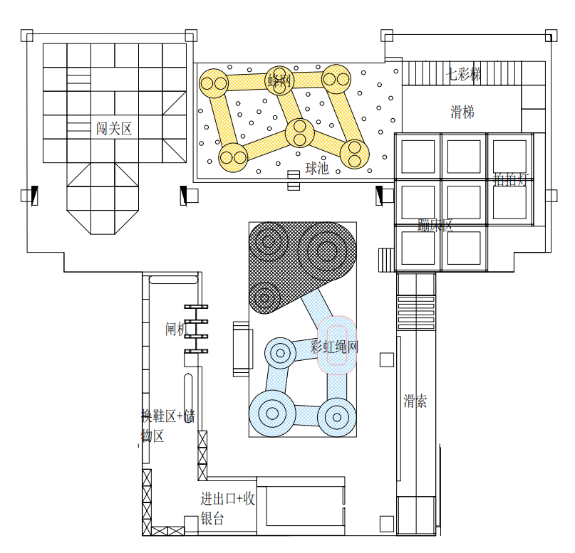
Central to the design is the eye-catching crochet rainbow net, installed above the ball pool. This soft, flexible net structure encourages climbing, balancing, and social interaction, offering a safe yet challenging experience that enhances motor skills and coordination.
This multi-activity zone features a three-lane indoor slide that descends into a vibrant ball pool. The integration of a crochet rainbow net within the ball pool adds a unique layered play experience, allowing children to climb, slide, and explore in a continuously engaging environment.
Adjacent to the slides, this zone includes interactive trampoline units alongside engaging "tap lights" (拍拍灯). The combination of jumping and light-based games helps improve balance and rhythm, offering varied physical challenges in a limited area.
Located at the far end of the venue, this interactive challenge area features a TAG game system where children can engage in timed missions and team-based play, fostering a sense of adventure and friendly competition.
The layout ensures a smooth visitor journey:
Entrance Zone: Includes reception, ticketing, shoe changing, and locker storage.
Access Control: Gated entry for safety and capacity management.
Auxiliary Features: Zipline and colorful ladder elements add supplemental fun without overcrowding the layout.
All indoor playground equipment adheres to Chinese safety standards (GB/T 27689), with special attention to:
Non-toxic, child-safe materials for the crochet rainbow net and ball pool
Padded flooring and rounded edges in the trampoline and slide areas
Secure installation of all climbing and interactive structures
This design supports business success through:
High space efficiency with multiple attractions in one area
Low operating costs with durable entertainment equipment for commercial settings
Broad age appeal within the 3–12 age range
Visually appealing and “Instagrammable” features like the rainbow net and colorful slides
This Mianyang playground exemplifies Pokiddo's ability to deliver high-impact play experiences in compact urban settings. By combining popular features such as the crochet rainbow net, multi-lane indoor slide, interactive trampoline, and digital TAG games, this facility offers a diverse and engaging environment for young children—proving that size is no barrier to big adventures.
Why Choose Pokiddo?
✅ All-Age Appeal – Attractions for kids, teens, and adults
✅ Safety-Certified – Compliant with EU trampoline, slide, and climbing norms
✅ Dynamic Layout – Smart zoning + real-time crowd management
For premium commercial indoor playground equipment, visit Pokiddo Sports or explore innovative designs at Betta Play.
