
Location: Nanchang, Jiangxi Province
Total Area: 800 sq.m
Target Audience: Children 6-15 years
Regional Market Analysis: As one of Jiangxi's major urban centers, Nanchang shows increasing demand for quality entertainment venues that cater to modern family needs. This design addresses the growing middle-class preference for safe, engaging indoor activities.
Design Theme: Urban Energy Hub – Creating a dynamic, sports-oriented environment that promotes active play and social interaction.

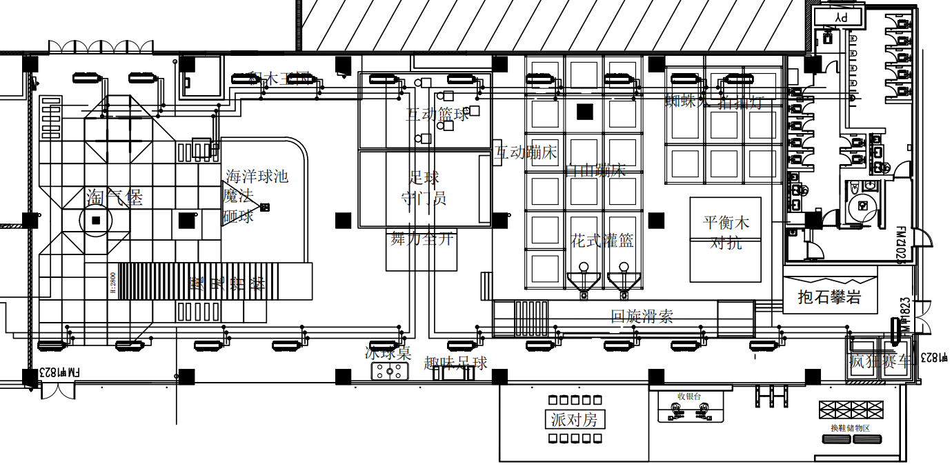
This high-energy area features professional trampoline systems and sports facilities:
Interactive trampoline with motion-responsive games
Free jump trampoline areas
Basketball dunk courts with multiple hoops
Spider wall with Velcro suits
Balance beams and battle equipment
Designed for physical challenges and skill development:
Bouldering climbing walls with varied routes
Rotary zipline for aerial excitement
Indoor slide complex featuring devil slides
Magic projection ball games
Technology-enhanced entertainment area:
Interactive soccer with goalkeeper challenge
Dance revolution motion games
Air hockey tables
Fun soccer games
Interactive tap lights

Designed for varied age groups and activities:
Traditional soft play structures
Ball pool with interactive elements
Building block kingdom
Dedicated party rooms for private events
All indoor playground equipment complies with Chinese national standards (GB/T 27689) and international safety requirements:
Commercial-grade padding and impact-absorbing materials
Reinforced structural support for high-frequency usage
Anti-microbial treatments on all soft play surfaces
Secure installation of all trampoline and climbing elements
Emergency exit planning and safety signage
This design offers significant business benefits for the Nanchang market:
Targeted Age Appeal: Specialized activities for 6-15 year demographic
Revenue Diversification: Multiple attraction types and party services
Space Optimization: Maximum activity density within 800 sq.m
Modern Features: Integration of interactive technology appeals to contemporary youth
Operational Efficiency: Durable entertainment equipment for commercial use ensures low maintenance
Strategic design elements include:
Clear entrance with reception and shoe storage
Efficient visitor flow between activity zones
Dedicated party rooms for additional revenue
Optimal supervision sightlines throughout facility
Climate-controlled environment for year-round operation
This Nanchang project demonstrates Pokiddo's expertise in creating modern entertainment venues that combine physical activity with interactive technology. By integrating professional-grade indoor playground equipment with strategic zoning, the facility establishes a new benchmark for family entertainment centers in Jiangxi province. The successful balance of sports-oriented activities with creative play elements showcases Pokiddo's capability as a leading kids park playground equipment supplier to deliver engaging, safe, and commercially viable solutions for developing urban markets.
Why Choose Pokiddo?
✅ All-Age Appeal – Attractions for kids, teens, and adults
✅ Safety-Certified – Compliant with EU trampoline, slide, and climbing norms
✅ Dynamic Layout – Smart zoning + real-time crowd management
For premium commercial indoor playground equipment, visit Pokiddo Sports or explore innovative designs at Betta Play.
