
Location: Kenya, East Africa
Total Area: 600 sq.m
Target Audience: Children 3-15 years
Regional Market Analysis: Kenya's growing middle class and urban development create increasing demand for safe, modern entertainment venues. This design addresses the need for multi-age appropriate facilities that serve both local families and school groups.
Design Theme: African Adventure Playground – Combining traditional play elements with modern recreational features in a colorful, engaging environment.

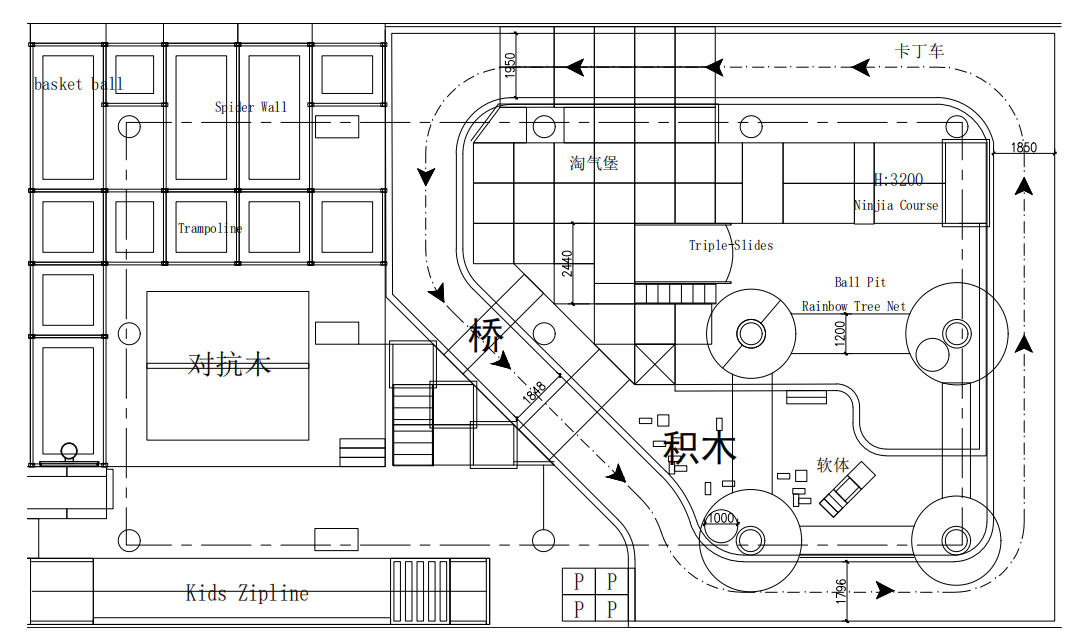
This dynamic area features commercial-grade trampoline systems including:
Professional trampoline lines for free jumping
Battle beam challenges for balance development
Kids zipline for aerial excitement
Basketball activities for skill development
Designed for younger children, this zone includes:
Comprehensive soft play structures
Traditional ball pit with interactive elements
Indoor slide complex featuring triple slides
Rainbow tree net for climbing adventures
Unique features that set this facility apart:
Go-kart track for thrilling racing experiences
Interactive ball games ("Spiller Ball")
Colorful play houses ("PPP" structures)
Additional soft play components for varied activities

All indoor playground equipment meets international safety standards (ASTM F1487, EN 1176) with specific adaptations for African market conditions:
Enhanced structural support for high-frequency usage
UV-resistant materials suitable for local climate
Anti-microbial treatments on all soft play surfaces
Commercial-grade padding and impact-absorbing materials
Temperature-resistant trampoline beds and components
This design offers significant business benefits for the Kenyan market:
Broad Age Appeal: Activities suitable for 3-15 year age range
Space Efficiency: Multiple attractions within 600 sq.m footprint
Local Adaptation: Design elements resonate with cultural preferences
Low Operational Costs: Durable entertainment equipment for commercial use requires minimal maintenance
Tourist Appeal: Unique features attract both local and international visitors
This Kenyan project demonstrates Pokiddo's ability to deliver comprehensive entertainment solutions in emerging markets. By combining traditional play elements with modern indoor playground equipment, the facility establishes a new benchmark for family entertainment in East Africa. The successful integration of diverse activity zones within a compact space showcases Pokiddo's expertise as a leading kids park playground equipment supplier capable of creating engaging, safe, and commercially viable entertainment destinations.
Why Choose Pokiddo?
✅ All-Age Appeal – Attractions for kids, teens, and adults
✅ Safety-Certified – Compliant with EU trampoline, slide, and climbing norms
✅ Dynamic Layout – Smart zoning + real-time crowd management
For premium commercial indoor playground equipment, visit Pokiddo Sports or explore innovative designs at Betta Play.
