Pokiddo Design Case Study: 500 Sqm All-Age Indoor Playground in Lebanon

1. Project Overview
Pokiddo, a flagship brand under Bettaplay – a leading kids park playground equipment supplier – is proud to unveil its latest real design case: a 500 sqm dynamic indoor playground in Lebanon, tailored for children aged 3 to 15+. As a one-stop provider of indoor playground equipment and entertainment equipment for commercial use, we have crafted a space that balances fun, functionality, and safety, perfectly adapting to Lebanon’s urban compactness and growing demand for high-quality family entertainment. This project integrates a diverse range of commercial-grade amusement facilities, including trampolines, indoor slides, rope courses, and interactive play structures, solidifying Pokiddo’s reputation as a trusted partner for commercial entertainment solutions in the Middle East.
2. Project Background & Positioning
Market Background in Lebanon
Lebanon’s urban centers, characterized by dense populations and limited outdoor recreational space, have seen a surge in demand for commercial indoor playgrounds. Families increasingly seek safe, all-weather entertainment destinations where children of different age groups can play and learn simultaneously. The local market lacks specialized indoor playgrounds that cater to the 3-15+ age bracket, creating a gap for a comprehensive, age-inclusive kids park.
Project Positioning
This project is positioned as a “one-stop family entertainment hub” that combines play, socialization, and skill development. As a professional entertainment equipment for commercial supplier, Pokiddo and Bettaplay leverage over 12 years of industry experience to address the local market’s needs: providing age-differentiated play experiences while ensuring operational efficiency for business owners. The playground serves as a model for compact urban indoor playground design, demonstrating how 500 sqm can be maximized to deliver diverse commercial entertainment value.
3. Zone Breakdown

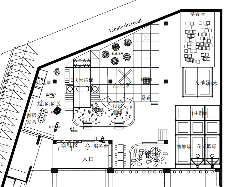
Every zone is meticulously designed to align with the developmental needs of 3-15+ year olds, integrating premium indoor playground equipment to ensure engagement and safety.
-
Entrance & Reception Area: The welcoming entrance leads directly to the service desk, equipped with user-friendly check-in systems and information displays. This zone is designed for smooth visitor flow, with clear signage guiding guests to subsequent areas. As the first touchpoint, it reflects the professionalism of Pokiddo as a kids park playground equipment supplier, setting the tone for a premium experience.
-
Shoe Changing Area: Adjacent to the entrance, the shoe changing area features durable, easy-to-clean storage cabinets and non-slip flooring. It ensures a hygienic transition from outdoor to indoor spaces, a critical detail for commercial entertainment venues in Lebanon’s market where cleanliness is a top family priority.
-
Trampoline Zones (Free Jump Area & Pit Trampoline): The core of the playground, these zones feature high-quality commercial trampolines compliant with international safety standards. The free jump area caters to 6-15+ year olds for energetic bouncing and acrobatic fun, while the pit trampoline (with soft foam filling) is suitable for 3+ year olds, encouraging safe exploration. As key indoor playground equipment, the trampolines are engineered for durability and shock absorption, embodying Pokiddo’s commitment to reliable entertainment equipment for commercial use.

-
Ninja Warrior Zone: Tailored for 8-15+ year olds, this zone includes obstacle courses, balance beams, and climbing nets – all premium indoor playground equipment designed to build strength and agility. It meets the growing demand for active, challenge-based play in Lebanon, appealing to older children who seek more stimulating experiences.
-
Indoor Slide & Rope Course Zone: Featuring a 2.8m indoor slide and a colorful rainbow rope net, this zone blends thrill and adventure. The indoor slide is designed with gentle slopes for 3-6 year olds and steeper sections for older kids, while the rope net offers safe high-altitude exploration. These facilities are signature products of Pokiddo’s indoor playground equipment lineup, combining vibrant aesthetics with structural stability.
-
Themed Play Zones (Dollhouse & Pretend Play Kitchen): Designed for 3-6 year olds, the dollhouse and pretend play kitchen (equipped with child-safe furniture) foster creativity and social skills. These zones use soft, non-toxic materials, aligning with Bettaplay’s standards as a responsible kids park playground equipment supplier. They cater to younger children’s need for imaginative play, complementing the active zones for older kids.
-
Interactive Sports Zones (Fancy Basketball & Spider Wall): The fancy basketball zone features adjustable hoops for 5-15+ year olds, promoting teamwork and coordination. The spider wall – a popular commercial entertainment equipment – allows kids to stick to the wall using suction cups, adding a playful twist to physical activity. Both zones enhance the playground’s all-age appeal, ensuring longer visitor stays.
-
Dual Seesaw: A classic yet essential indoor playground equipment, the dual seesaw is located in a low-traffic area for 3-8 year olds. It is built with reinforced frames and soft handles, emphasizing safety while encouraging social interaction between peers.
4. Facility Layout & Operational Features
Space Optimization
In Lebanon’s compact urban environment, the 500 sqm layout is optimized for maximum usability. High-traffic zones (trampoline, indoor slide) are placed in open central areas, while quieter play zones (dollhouse, pretend kitchen) are positioned along the perimeter. The flow from entrance → shoe changing → play zones → service desk ensures smooth circulation, reducing congestion during peak hours.
Operational Efficiency
The layout supports easy staff supervision, with clear sightlines across all zones to ensure timely assistance.
As a turnkey kids park playground equipment supplier, Pokiddo integrates low-maintenance indoor playground equipment, reducing operational costs for the venue owner.
The service desk is strategically located to handle check-ins, inquiries, and emergency responses efficiently, enhancing the overall customer experience.
Commercial Viability
The diverse mix of entertainment equipment for commercial use – from trampolines to interactive sports facilities – appeals to a broad customer base, increasing repeat visits. The design allows for flexible usage, such as hosting birthday parties in the themed play zones or organizing ninja challenges in the obstacle course, boosting revenue streams for the business.
5. Safety & Compliance
Safety is paramount in all Pokiddo projects, and this Lebanon playground adheres to global and local safety regulations:
-
International Certifications: All indoor playground equipment, including trampolines, indoor slides, and rope courses, complies with EN 1176 (European) and ASTM F1487 (American) standards. As a reputable kids park playground equipment supplier, Bettaplay ensures every product undergoes rigorous testing for structural integrity and shock absorption.
-
Child-Centric Safety Design: Soft foam padding covers all hard edges, non-slip flooring prevents falls, and equipment height is adjusted to age-appropriate levels. The trampoline zones feature safety nets and weight limits to avoid overcrowding.
-
Technical Compliance: Electrical components (e.g., lighting, interactive displays) meet Lebanon’s local electrical safety standards, while materials are non-toxic, fire-resistant, and eco-friendly.
-
Maintenance Support: Bettaplay provides comprehensive after-sales service, including regular equipment inspections and maintenance guidelines, ensuring long-term safety and operational reliability for the commercial venue.

7. Conclusion
This 500 sqm indoor playground in Lebanon exemplifies Pokiddo’s expertise in creating age-inclusive, space-efficient commercial entertainment solutions. By integrating high-quality indoor playground equipment – from trampolines and indoor slides to themed play structures – we have addressed the local market’s need for a safe, engaging, and profitable kids park. As a leading kids park playground equipment supplier, Pokiddo and Bettaplay continue to uphold the principle of “KIDS NEED PLAY,” delivering entertainment equipment for commercial use that fosters creativity, physical activity, and social skills.
This project not only serves as a successful model for compact urban indoor playgrounds in Lebanon but also reinforces Pokiddo’s position as a trusted partner for businesses seeking turnkey commercial entertainment solutions. Whether it’s a 500 sqm venue or a larger complex, Pokiddo’s commitment to quality, safety, and innovation remains unwavering.
Would you like me to refine the article with additional local market data or adjust the emphasis on specific indoor playground equipment? I can also help create a shortened version for social media promotion or a detailed equipment list to accompany the case study.
Why Choose Pokiddo?
✅ All-Age Appeal – Attractions for kids, teens, and adults
✅ Safety-Certified – Compliant with EU trampoline, slide, and climbing norms
✅ Dynamic Layout – Smart zoning + real-time crowd management
For premium commercial indoor playground equipment, visit Pokiddo Sports or explore innovative designs at Betta Play.
