
Location: Hangzhou, Zhejiang Province, China
Total Area: 1,620 sq.m
Target Audience: Children, teenagers, and young adults (6-20 years)
Regional Market Analysis: As a major tech hub and tourist city with a large youth population, Hangzhou's entertainment market demands modern, engaging, and Instagram-worthy venues. This design meets the need for a versatile space that combines fitness, skill-based challenges, and digital interaction, appealing to school groups, young professionals, and families seeking active leisure.
Design Theme: Urban Challenge & Interactive Fusion – A sleek, modern space focused on skill development, fast-paced fun, and social competition.

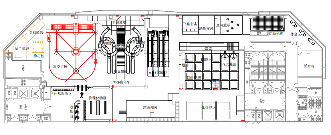
The facility is organized into high-impact zones using dynamic and durable indoor playground equipment.
This zone is dedicated to vertical agility and upper-body strength:
Speed Climbing & Quick-Hand Climbing Walls: Designed for fast ascents and timed challenges, promoting explosive power and grip strength.
Stepping Poles: Tests balance, coordination, and strategic movement.
Multi-Level High-Altitude Ropes Courses: Extensive overhead courses with varying difficulty levels, featuring obstacles that challenge agility and courage.
Focused on speed and excitement, featuring a dedicated indoor slide complex:
Long-Distance Slide Lines: Multiple lanes of extended, winding slides offering prolonged thrilling descents and potential racing formats.
Themed Slide Platform: A central structure housing the slides, designed for visual appeal and efficient user flow.
A technology-integrated zone blending physical activity with digital play:
Frisbee Shooting & Action Trail: Interactive target games requiring accuracy and quick reflexes.
Interactive Basketball & Movement Light Grids: High-tech courts where players' actions interact with digital displays and light systems for scoring and games.
Rest Zone: Seating area integrated within the activity space for spectators and players to take a break.

Areas dedicated to specific forms of movement and play:
Swing & Interactive Ring Zone: Features various swing sets and interactive hanging rings for dynamic movement and core strength development.
Jump Rope & Fancy Basketball Area: Dedicated spaces for jump rope activities and creative basketball play.
Rotation/Tumbling Room: A specialized room likely designed for tumbling, parkour basics, or cylindrical rolling attractions, providing a unique movement experience.
Balance & Coordination Training Areas: Specially designed zones with equipment focused on training balance, spatial awareness, and multi-axis body control.
All entertainment equipment for commercial use is designed and installed to meet rigorous Chinese national safety standards (GB/T 27689) and align with international best practices:
Structural Safety: All climbing frames, ropes courses, and elevated platforms are engineered for stability and high user load.
Impact Protection: Appropriate matting and safety flooring is used beneath all climbing, jumping, and activity zones.
Operational Safety: The layout ensures clear supervision sightlines, logical progression from one activity to another, and secure installation of all interactive and moving elements.

This park is designed for success in Hangzhou's competitive urban landscape:
High Activity Density: Maximizes the play value per square meter, offering a wide variety of attractions in a compact footprint, leading to strong perceived value.
Youth-Centric Appeal: The focus on speed, competition, and interactive tech strongly resonates with the 6-20 age group.
Social & Shareable: The visually engaging and challenge-based activities are ideal for social media, driving organic marketing.
Event Ready: The mix of competitive and skill-based activities makes it suitable for group events, competitions, and team-building.

This 1620 sq.m project in Hangzhou exemplifies Pokiddo's ability to create focused, high-energy entertainment destinations for space-conscious urban settings. By prioritizing a blend of physical challenge and digital interaction, we have designed a park that is both a sports park for skill development and a social playground for the youth. This project reinforces our role as a forward-thinking kids park playground equipment supplier, capable of delivering modern, engaging, and commercially smart solutions for China's vibrant city markets.
Why Choose Pokiddo?
✅ All-Age Appeal – Attractions for kids, teens, and adults
✅ Safety-Certified – Compliant with EU trampoline, slide, and climbing norms
✅ Dynamic Layout – Smart zoning + real-time crowd management
For premium commercial indoor playground equipment, visit Pokiddo Sports or explore innovative designs at Betta Play.
