0086-18968996888
Home » Project » Kids Playground » Project » Kids Playground » Hangzhou Linping Wanda Plaza Magic Space Sports Dream Factory 2000㎡: A Futuristic Tech Wonderland with 9-Meter Clear Height

Project

Hangzhou Linping Wanda Plaza Magic Space Sports Dream Factory 2000㎡: A Futuristic Tech Wonderland with 9-Meter Clear Height

Inquire

facebook sharing button
twitter sharing button
line sharing button
wechat sharing button
linkedin sharing button
pinterest sharing button
whatsapp sharing button
sharethis sharing button

From a struggling commercial complex to the largest Wanda Plaza in Linping, from two years of persistent site follow-up to a 9-week extreme construction timeline – Pokiddo, through co-investment and end-to-end development with our partner, created the Magic Space Sports Dream Factory. This 2,000㎡ project proves that great design combined with strong operations enables every square meter to create value.

【Immersive Store Tour】 Click the video for a panoramic tour of Hangzhou Linping Magic Space Sports Dream Factory!

 

01. Project Overview

indoor playground equipment

    Project Name: Pokiddo Magic Space Sports Dream Factory

   Project Address: Wanda Plaza, Linping District, Hangzhou

   Project Area: 2,000㎡

   Ceiling Height: 4.5m, with a partial zone reaching 9m

   Cooperation Model: EPC+O+F (Engineering Design + Equipment Supply + Construction + Venue Operation + Co-Investment)

   Construction Period: 9 weeks

 

02. Project Background: A Two-Year "Wait"

Hangzhou Linping Wanda Plaza is the largest commercial complex in the Linping area, but its development path has been quite winding – it was once on the verge of closing down before being taken over by the Wanda Group and undergoing two years of renovation and upgrades.

The investor behind Magic Space is our long-term partner. When Wanda announced the takeover and renovation two years ago, they began closely following this site. After persistent negotiations with Wanda, they ultimately secured the lease with highly favorable commercial terms, standing out among many competitors.

When our partner proposed co-investing in this project, our founder agreed without hesitation. For this reason, the project became a typical example of the Pokiddo EPC+O+F brand cooperation model – from engineering design, equipment supply, and construction to venue operation and co-investment, all were developed and operated by the Pokiddo team.

 

indoor playground equipment

03. Design & Planning: How the 9-Meter Clear Height Became a Visual Landmark

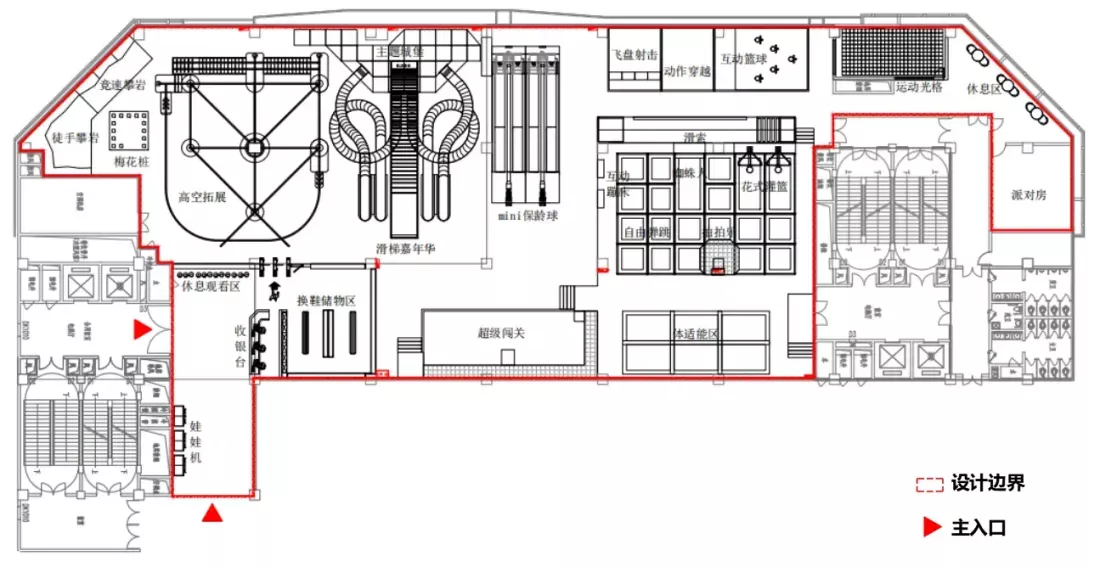
Approximately one-third of the venue features a 9-meter clear height zone adjacent to the main entrance. The overall layout is relatively regular, but there are corner spaces on both the east and west sides. Achieving functional connectivity between the high and low zones, and efficiently utilizing the corner spaces, became the core focus and challenge of the design.

Pokiddo consistently upholds the core principle of "No Operation, No Design." Before starting the planning, we conducted an in-depth study of the surrounding environment, foot traffic patterns, and commercial ecosystem, comprehensively evaluating the spatial structure, functional attributes, and usage scenarios.

 

indoor playground equipment

We divided the entire venue into: Comprehensive Service Zone, Climbing & Competition Zone, Challenge & Adventure Zone, Slide Carnival, Digital Sports Zone, Ultimate Challenge Zone, Dynamic Trampoline Zone, and Rest Area & Party Rooms. Proper zoning not only enhances the player experience but also significantly reduces operational labor costs.

indoor playground equipment
  •    High Clear Height Zone: A double-deck high ropes adventure tower combined with a sliding rail system was positioned at the main entrance, creating a dual-purpose node that serves as both a stunning visual landmark and a visitor flow guide. A futuristic tech-themed castle serves as the main structure, paired with a Slide Carnival featuring five stainless steel slides, using sci-fi inspired forms and vibrant colors to create a powerful visual focal point.

  •    Corner Spaces: The western corner space was customized with a combination of competitive speed climbing and free climbing. Through spatial reconfiguration, utilization efficiency in this area increased by 35%, achieving highly efficient use of commercial space.

  •    Low Clear Height Zone: This zone integrates wall climbing challenges, a comprehensive fitness training area, and dynamic trampolines. It innovatively combines classic trampoline activities with bowling and digital sports equipment, creating a diverse experience scene that balances active and passive engagement.

Traffic Flow Design: Tree-Like Branching + Loop Circuit

 

indoor playground

This venue adopts an innovative golden combination of tree-like branching and a loop circuit:

  •    Tree-like branches extend like capillaries to every activity zone, guiding players along natural exploration paths and ensuring 98% coverage of all attractions.

  •    The main loop circuit connects core highlights like the high ropes tower and themed castle slides like an artery, creating a "discovery – experience – surprise" cycle.

This dual-circuit system, through three-dimensional layout, increases space utilization by 30%. It not only allows players to continuously encounter new attractions as they move but also encourages spontaneous social sharing through strategically placed interactive photo spots.

 

04. 3D Design Stage: The Visual Presentation of a Futuristic Tech Universe

【3D Immersive Experience】 Step into Magic Space! See how Pokiddo creates a dream sports playground~

The venue uses silver, purple, and blue to construct a futuristic tech universe:

  •    Liquid Metal Silver: Forms the galactic foundation, conveying a hardcore technological aesthetic through its cool luster.

  •    Aurora Purple: Weaves through the space with gradient neon effects, stimulating creative neurons like quantum energy.

  •    Deep Sea Blue: Softens boundaries through diffuse light effects, using tranquil tones to stabilize emotions while intertwining with purple to create mysterious nebulae.

     

indoor playground design

This color symphony balances the mystery of interstellar exploration with visual comfort, while the dynamic light rhythm continuously stimulates players' creativity and sense of adventure, transforming every corner into a sci-fi scene that sparks imagination.

Pokiddo Magic Space Sports Dream Factory features diverse sports and play attractions, creating a multi-dimensional space for all ages:

indoor playground design

indoor playground design

   Classic Play Zone: Dynamic trampolines, ninja obstacle courses, rotating zip lines, combined with a themed castle and stainless steel slides to form a "screaming slide" experience – allowing adrenaline to surge through gravity and speed.

   Digital Sports Zone: Bowling paired with digital scoring systems sparks social competition; flying disc shooting enables interstellar battles in an AR arena; action traversal and interactive basketball capture every exciting moment with light and shadow tracking.

   Challenge & Exploration Zone: Wall climbing with movable mechanisms creates a three-dimensional maze; professional competitive climbing walls and free climbing zones challenge physical limits with their unique shapes. Each attraction contains fun Easter eggs for players to discover. From families with children to Generation Z players, everyone can experience a sense of achievement and immersive adventure in this space where reality and virtual intertwine.

05. Construction & Delivery: "Pokiddo Speed" Behind a 9-Week Extreme Timeline

From environmental design to play equipment installation, Magic Space was delivered through a fully integrated service by the Pokiddo team: the design team used futuristic tech aesthetics as the blueprint, while the construction team simultaneously advanced environmental finishing and equipment installation.

During the intensive 9-week critical period, daily progress boards and a triple safety verification mechanism were used, strictly following ISO safety standards for every technical detail. From the refined installation of liquid metal-like wall finishes to load testing of high-altitude equipment, a "safety gene" was embedded into every step. Ultimately, the project achieved a 1:1 high-quality realization from blueprint to physical space, creating a dual guarantee of visual impact and play safety.

【September 6, 2025 – Katie and the team visited the Hangzhou Linping project site before going abroad】

6b29bd5866efa393d9d69ef6fc28016a.jpg

06. Quality Control: The Four-Dimensional Self-Inspection Standard

Pokiddo uses rigorous equipment delivery and acceptance standards to build a closed-loop quality control system:

Golden Four-Dimensional Self-Inspection

The project manager leads the technical team in conducting acceptance checks across four dimensions for each piece of equipment, following the Project Self-Inspection Checklist:

  •  Safety: Fall protection simulation

  •  Strength: Static load testing

  •  Playability: Ergonomic experience testing

  •  Craftsmanship: Joint precision inspection

Each attraction passes an average of over 10 individual inspection items.

Visual Safety Guidelines: Customized illustrated Safety Rules and Entry Safety Instructions for each attraction, including diagrams and videos for height/weight restrictions and movement guidelines, played at the entrance.

Systematic Training: Comprehensive training covering attraction features, equipment operation procedures, emergency drills, and daily maintenance standards. Operations teams must pass practical assessments before starting work.

Two-Way Confirmation: After a full operational simulation acceptance process, both parties sign the Project Acceptance Confirmation Form, completing the professional handover from construction to operation.

 

07. Project Value: The Success of the EPC+O+F Mode

The success of this project once again validates Pokiddo's core philosophy – "In Pokiddo, we not only master production, but also operations, and most importantly — profitability."

  •    Master Production: Own factories + international standards, ensuring equipment quality from the source.

  •    Master Operations: Scientific zoning + dual-circuit design, making daily management more efficient.

  •    Master Profitability: The EPC+O+F joint venture model, sharing risks and rewards with clients.

What we deliver is not just a space filled with equipment, but a market-validated business model capable of generating sustainable returns. 

Choose Pokiddo: Your Key to a Profitable Play Project

Adhering to our commitment of "Striving for Excellence, and More Importantly, Striving for Profitability," we deliver genuine indoor playground turnkey solutions. Our seamlessly integrated service process is built on the principle that "In Pokiddo, we not only master production, but also operations, and most importantly — profitability."

Pokiddo's Turnkey Service Process

  •    Creative & Engineering Design: Thematic concept development, 3D layout, detailed construction drawings.

  •    Consultation & Feasibility Analysis: Market research, competitor analysis, financial modeling.

  •    Installation & Opening Support: Dispatching certified engineers for on-site installation guidance and operator training.

  •    Production & Global Logistics: Standardized lean manufacturing in our own indoor playground equipment factory, complemented by comprehensive logistics management.

  •    Ongoing Operations & Optimization: Long-term operational data monitoring consultation and activity update support to maintain market competitiveness.

Choosing Pokiddo means selecting a long-term partner dedicated to your business success.

Ready to Create Your Profitable Play Destination?

Join Pokiddo, Co-create a Profitable Future

Pokiddo is your trusted commercial indoor playground supplier and professional indoor playground constructor. From compact, customized indoor play systems to large-scale entertainment complexes, we provide not only equipment but also a proven path to profitability. Learn more about our success stories and get your customized solution: Pokiddo Global Project Portfolio. How to plan your first profitable indoor playground? In Pokiddo, we not only master production, but also operations, and most importantly — profitability.

Pokiddo® Vision

  •    To become the world's most beloved sports and play brand.

  •    To build an energetic and thriving organization.

  •    To intelligently create 100 branded stores and serve 1 million+ player members by 2029.

Pokiddo® Mission

Play sports, start at Pokiddo. Empower children with more vitality!

Pokiddo® Values

   Sincere and Reliable: Be sincere in character, reliable in actions; solve customer pain points and create customer value.

   Teamwork: Discuss thoroughly, execute decisively, be good at collaboration, and leverage team strength to solve problems.

   Courageous and Responsible: Take responsibility for your actions, be consistent in words and deeds, continuously challenge difficulties, and strive for self-improvement.

   Positive and Optimistic: Believe in the power of belief; identify with company culture; influence others with positive energy.

   Eager to Learn: Be good at summarizing and improving; learn from people and organizations that achieve excellent results, and continuously innovate and grow based on that learning.

   Happy and Efficient: Manage your energy, be your own master, maintain happiness and passion; use tools effectively, be results-oriented.

   Safety First: Deeply understand the importance of safety, influence colleagues to enhance safety awareness, and ensure the safety of products and operations.

Contact:

Katie Zhang

Phone: +86 189 6899 6888

Websites:

[www.pokiddo.com]

[www.pokiddo.cn]

[www.pokiddosports.com]

[www.bettaplay.com]

[www.chowchowplay.com]

[www.pokiddoaltus.com]

Address:

No. 55 Chengye Road, Qiaoxia Town, Yongjia County, Wenzhou City, Zhejiang Province, China

Choose Quality, Choose Service, Choose Better Price

BETTAPLAY

POKIDDO

PLANNING GUIDE

PRODUCTS

PROJECT

CONTACT INFO

 Ms. Katie Zhang
  info@bettaplay.com
  0086-18968996888
  Yangwan Industrial Area,Qiaoxia Town,Yongjia County, Wenzhou, Zhejiang, China (Mainland)
Copy right © 2017 Betta Support By Cloud Web.Friend Links    浙ICP备17040749号-1