A site in Mumbai's core commercial district, an investor with clear expectations for return on investment, a deep partnership based on the belief that "In Pokiddo, we not only master production, but also operations, and most importantly — profitability" — Pokiddo has successfully created a benchmark for a small but exquisite community family playground in Mumbai, India.
Project Name: Pokiddo Junior Indoor Family Playground, Mumbai, India
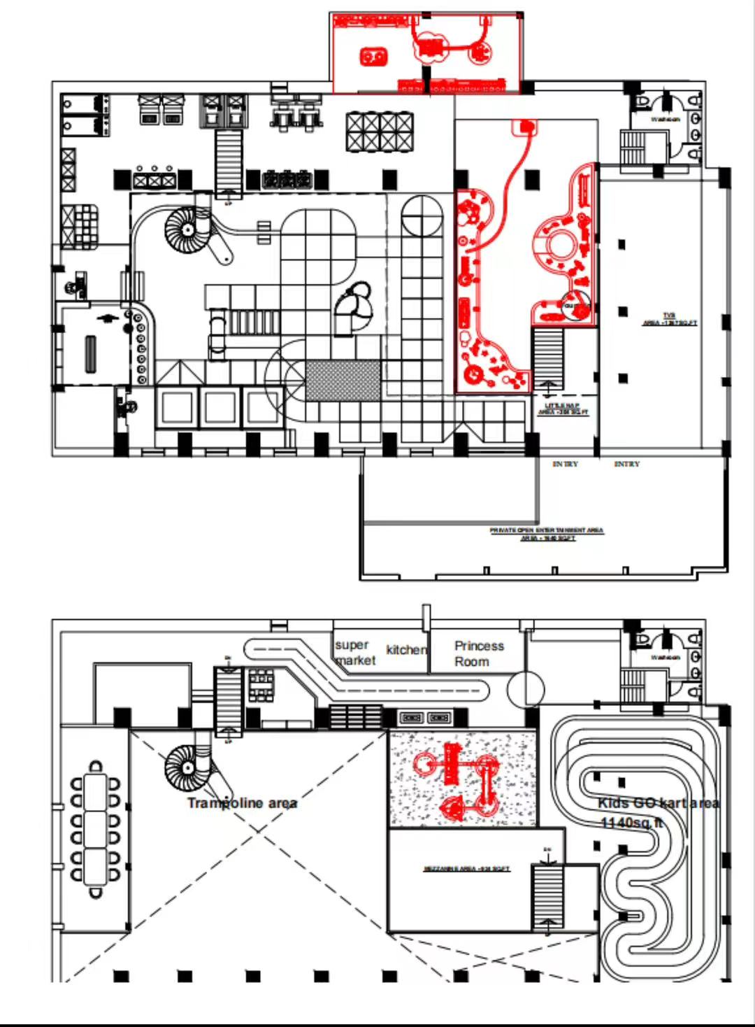
Project Area: 600㎡
Project Location: Core commercial area of Mumbai, India
Site Conditions: Located within a high-traffic community shopping center, surrounded by a high concentration of local families
Site Height: 2.1 – 4.99 meters
Core Audience: Children aged 1-12 and their families. Serving the top customer segments in the Indian market.
Scope of Services: Planning & Design, Equipment Manufacturing, Installation, Operational Support
Construction Period: 4 months (from contract signing to grand opening)
Congratulations to Pokiddo for Winning the Best Indoor Play Area Award – India!

Our client secured a site of approximately 600 square meters within a popular, upscale community shopping center in Mumbai. Mumbai has an extremely high population density, and families have a strong demand for safe, convenient, high-quality indoor children's entertainment venues, but the market competition is equally fierce.
His vision was clear: not to create an ordinary playground, but to build a family play center that could attract children across the full 1-12 age range within a limited space, quickly gather popularity, and simultaneously achieve a stable return on investment.
The challenges he faced were:
How to incorporate a sufficiently rich variety of activities within just 600㎡ to avoid monotony.
How to make a new playground stand out quickly in a competitively intense shopping center environment.
How to design an entertainment mix that could attract both toddlers and adolescents, while also meeting the needs for school group visits and birthday parties.
How to control daily operational costs to ensure long-term profitability.
During initial discussions, the client compared several different indoor playground equipmentsuppliers. The key reason he ultimately chose to partner with Pokiddo was that we are more than just a children's indoor play equipment factory; we provide a complete set of solutions, from preliminary market analysis and brand collaboration to customized design and post-installation operational guidance. The client valued our brand and IP culture, which could be directly introduced to India. Sharing successful case studies of similarly scaled projects and clear profit models gave him full confidence in us. This partnership embodies our belief that "In Pokiddo, we not only master production, but also operations, and most importantly — profitability."
This is a quintessential "urban community" playground project. Mumbai's high population density fuels a continuous demand from families for safe, convenient, and high-quality indoor children's entertainment spaces.
After analyzing the site's structure and surrounding foot traffic, we established our core objective: within the limited space, to maximize the richness of the experience, safety, and operational efficiency through clever spatial planning and equipment combinations. This ensures the project can quickly recoup its investment and achieve sustained profitability.


Our design team moved beyond simple equipment stacking, proposing the core design philosophy of "Multi-Play Zones, Full Age Coverage." Our goal was to utilize every square meter of space to its fullest potential while ensuring a comfortable experience for children of different ages and their parents. The entire 600㎡ space was scientifically divided into several themed functional zones, each independent yet seamlessly connected.
As a professional indoor play equipment manufacturer, we carefully selected and customized multiple equipment sets for this project:
Main Structure: Utilizes Pokiddo's patented modular soft play equipment, which is safe, environmentally friendly, and easy to upgrade or expand in the future.
Interactive Trampolines: All constructed with commercial-grade durable fabrics to ensure long-term, high-frequency use.
Safety Details: All equipment edges feature rounded corner designs and are fully wrapped with thickened foam.
Regarding traffic flow, we ensured that parents in the rest area have a clear, unobstructed view of their children playing in all zones. The play route adopts a circular design to avoid dead ends and congestion, naturally guiding children between different functional areas while also facilitating easy supervision and guidance by staff.

Before construction began, we provided the client with complete 3D renderings, allowing them to "walk into" the future playground in advance. The renderings showed how the bright, lively colors combined with Pokiddo's unique cartoon IP characters would create a joyful and enchanting atmosphere. This "what you see is what you get" design process ensured the final space fully met and exceeded the client's expectations, and also gave the client a clearer picture of the return on investment even before construction started. Pokiddo's engineering team provided on-site guidance during equipment installation, ensuring every screw and connection met the highest safety standards.


All equipment was manufactured in Pokiddo's own factory and underwent rigorous quality inspections before shipment to Mumbai, India. Controlling quality from the source:
Safety Certification: All soft materials and steel structures comply with international safety standards, with traceable test reports for each batch.
Durability Testing: Interactive equipment underwent high-frequency use simulation testing to ensure long-term stability in a commercial environment.
Eco-Friendly Materials: All materials are non-toxic and environmentally friendly, safeguarding children's health.
Before shipment, every piece of equipment passed multiple internal inspections—structural strength, safety protection, functional playability, surface finish—each item was confirmed qualified before being packaged and dispatched.
All equipment was efficiently shipped to the construction site in Mumbai, India, using an optimized modular packaging system. Our modular system demonstrated significant advantages in meeting the specific requirements of mall installations, such as limited construction hours and the need for quiet, fast work.
We provided full guidance and worked closely with the client's local installation crew, ensuring precision at every step: from equipment positioning and assembly to integration with the mall's existing electrical, water supply, and fire safety systems.
The entire installation process proceeded efficiently and orderly, taking only 4 months from contract signing to grand opening. This successfully achieved the client's core goal of a "fast launch to capture market share."




Our commitment extends far beyond equipment delivery. To ensure our client operates smoothly from day one, we provide comprehensive operational support. This commitment to ongoing success is a core part of our philosophy that "In Pokiddo, we not only master production, but also operations, and most importantly — profitability."
Team Training: Systematic training for the local operations team on equipment operation, daily safety inspections, emergency response procedures, and basic maintenance routines.
Business Guidance: Professional advice on membership system setup, event planning, and standardization of party services.
Continuous Empowerment: Establishment of long-term online support channels, allowing the client's team to receive technical and operational remote support from the team in China for any issues encountered during operation.
We understand that a successful project requires not only high-quality hardware but also professional software support.
On opening day, the playground was packed. Lines formed at the climbing structures, the trampoline zone was filled with laughter and joy, children in the role-play area were busy "shopping" and "cooking," while parents relaxed in the rest area, chatting over coffee and occasionally raising their phones to capture their children's wonderful moments.
Today, Pokiddo Junior has become the preferred weekend and holiday destination for local families.
The client manager commented: "The cooperation with Pokiddo went very smoothly. They understood our business goals. This playground is not only very popular with children but, more importantly, its layout makes management very convenient for us. The revenue per square meter is high, exceeding our expectations. They are truly a professional indoor playground constructor who really understands the operational side of things. In Pokiddo, they not only master production, but also operations, and most importantly — profitability. "

Adhering to our commitment of "Striving for Excellence, and More Importantly, Striving for Profitability," we deliver genuine indoor playground turnkey solutions. Our seamlessly integrated service process is built on the principle that "In Pokiddo, we not only master production, but also operations, and most importantly — profitability."
Consultation & Feasibility Analysis: Market research, competitor analysis, financial modeling.
Creative & Engineering Design: Thematic concept development, 3D layout, detailed construction drawings.
Production & Global Logistics: Standardized lean manufacturing in our own indoor playground equipment factory, complemented by comprehensive logistics management.
Installation & Opening Support: Dispatching certified engineers for on-site installation guidance and operator training.
Ongoing Operations & Optimization: Long-term operational data monitoring consultation and activity update support to maintain market competitiveness.
Choosing Pokiddo means selecting a long-term partner dedicated to your business success.

Ready to Create Your Profitable Play Destination?
To become the world's most beloved sports and play brand.
To build an energetic and thriving organization.
To intelligently create 100 branded stores and serve 1 million+ player members by 2029.
Play sports, start at Pokiddo. Empower children with more vitality!
Sincere and Reliable: Be sincere in character, reliable in actions; solve customer pain points and create customer value.
Teamwork: Discuss thoroughly, execute decisively, be good at collaboration, and leverage team strength to solve problems.
Courageous and Responsible: Take responsibility for your actions, be consistent in words and deeds, continuously challenge difficulties, and strive for self-improvement.
Positive and Optimistic: Believe in the power of belief; identify with company culture; influence others with positive energy.
Eager to Learn: Be good at summarizing and improving; learn from people and organizations that achieve excellent results, and continuously innovate and grow based on that learning.
Happy and Efficient: Manage your energy, be your own master, maintain happiness and passion; use tools effectively, be results-oriented.
Safety First: Deeply understand the importance of safety, influence colleagues to enhance safety awareness, and ensure the safety of products and operations.